首页
Home
WAQI做些什么
Services
WAQI的作品
Projects
WAQI是谁
About us
WAQI学院
College
联系WAQI
Contact us
logo
都市的社区农场公园|生态农场
发布于:2020-07-28 15:22 浏览:
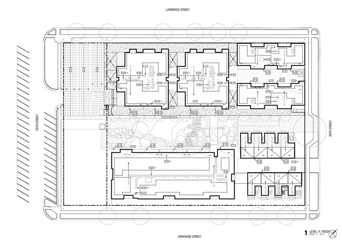
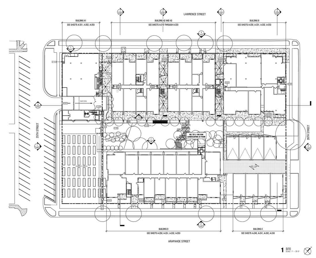
S*公园是一个环保的都市农业社区发展项目,占据科罗拉多州丹佛市一个完整的城市街区。作为可持续生活的孵化器,它最大化利用阳光和绿植,提供了高密度又多样化的生活空间,也节约了能源。项目的主要概念是将场地内的车辆移到地下停车场,流出空间给都市农业,给一个集体共享的公园,以及公寓楼之间植入的雨水储存系统。
项目信息
设计公司:Tres Birds
项目类型:生态设计、生态农场、景观规划设计
位置:美国
▽ 设计构想
设计目标在于创造一个既能服务社区又能满足生态功能需求的室外空间。在S*公园的总平面设计中,阳光是一个重要的考虑因素。阳光与场地的互动促使建筑师将街区南面打开,向都市农业和全年可用的室外绿色空间开敞。临近地面城市公园,有一个二层的温室,它能让充足的自然光进入,无需人工光源便能种植嫩植物。这栋低能耗、高技术的玻璃屋也十分抢眼地占据着场地的一个角落。
与新建的多家庭公寓单元相比,S*公园的住宅单元运行能耗只有1/3。S*公园用的许多砖都是从Mendoza砖厂回收的,而Mendoza是一家总部位于丹佛的拆迁公司,负责从整个城市拆毁的建筑物中回收材料。砖块多样的图案与堆砌方式为建筑带来了趣味性和肌理感,同时也满足了特别的功能需求。
在阳台和外挂楼梯有意地抽走部分砖块,能让光线射入进来,也能让人看到室外的景色。近地面的墙砖转个方向,能让绿植更好地攀爬生长。日本餐厅Uchi的南立面上,红砖与玻璃砖交替使用。
▽ 农场景观设计
▽ 细节设计
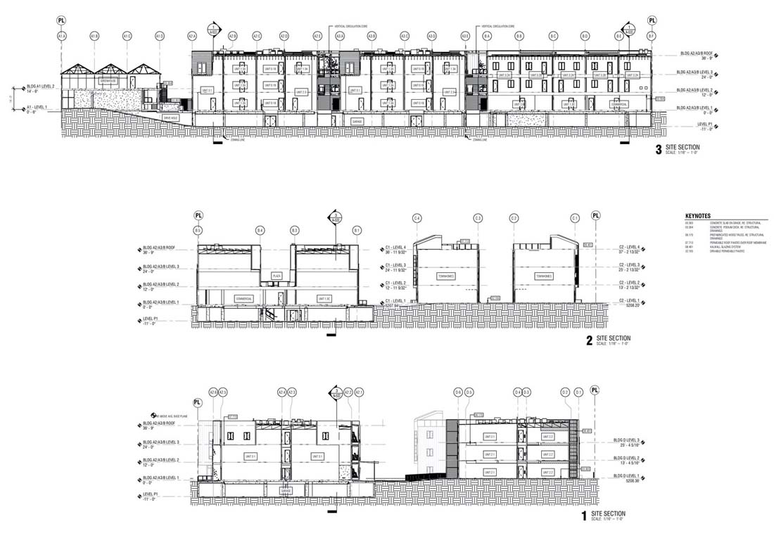
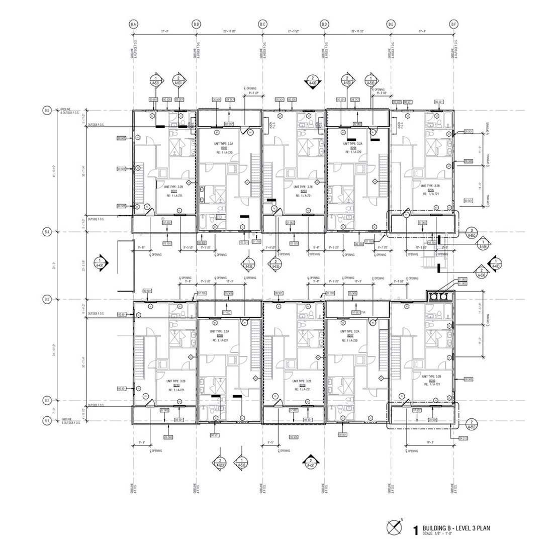
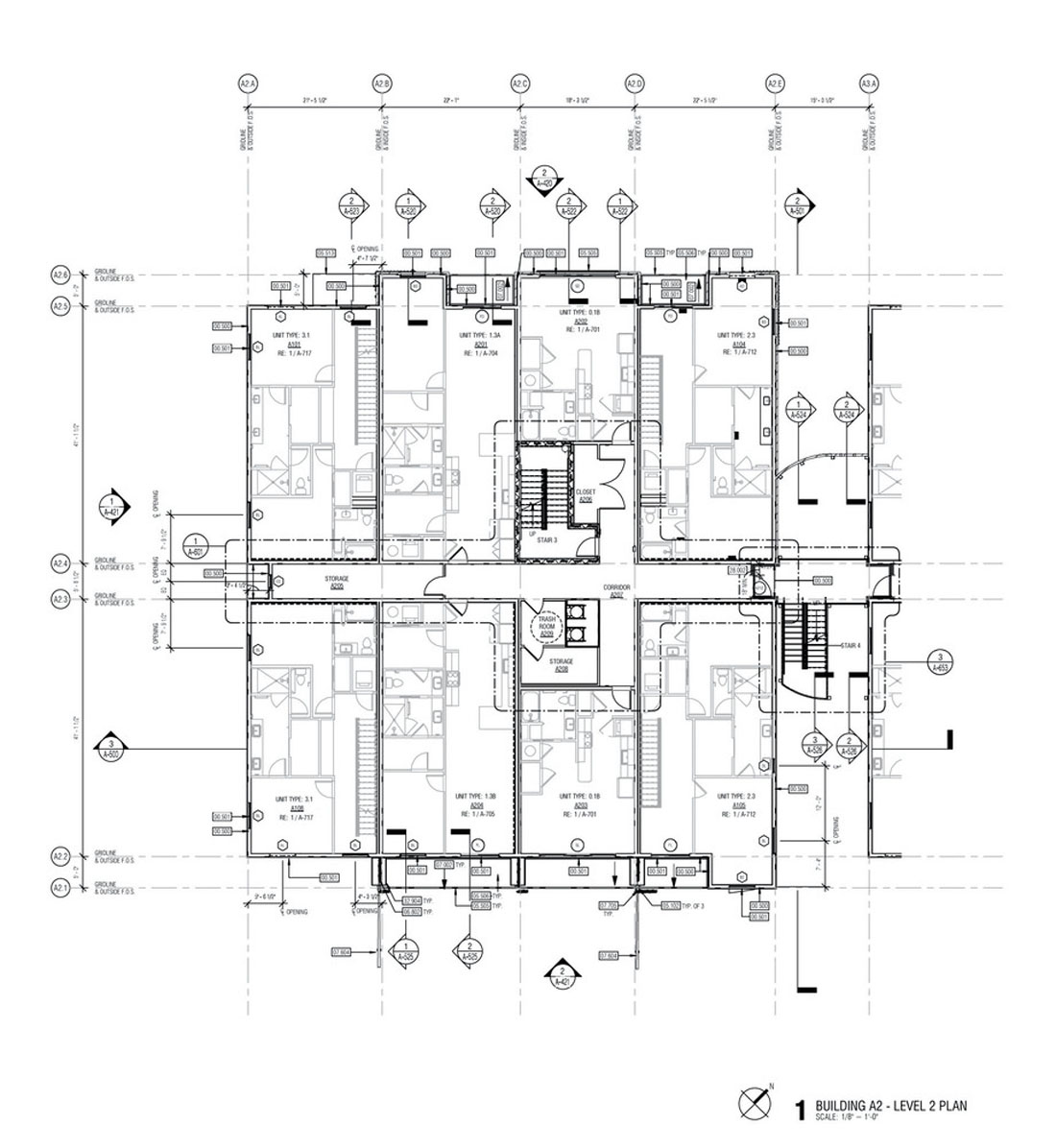
▽ 平面图
▽ 立面图
编后语:设计师用数十年的时间重新开发废弃社区,给一度荒废的建筑增添了价值,也重新激活社区。让社区、城市的居民能够在城市里也能接触到自然的馈赠,当然这也是要居民与自然的互动才能让社区变得鲜活起来。更多关于生态农场、生态设计、景观规划设计的案例,请点击下面的拓展阅读进行跳转阅读。
来源网站:www.archdaily.com
翻译整理:WAQI
拓展阅读
大凉山沙马普尔彝族人文生态村规划设计
新村湖旅游度假项目景观概念设计
穆家峪桃源度假村概念设计
湄潭大健康旅游小镇
汤沟小镇概念性规划
罗婺文化特色小镇
燕山文化新城概念规划
千灯镇安居小区
设计终究是一个不断学习的过程,WAQI作为一家学习型设计事务所,通常在设计的过程中,会分析甚至于拆建一些案例,
不定期分享一些心得。请扫描并关注公众号,更多精彩,与您共享。。。
马上分享WAQI:
微信
QQ空间
新浪微博
上一个
下一个