首页
Home
WAQI做些什么
Services
WAQI的作品
Projects
WAQI是谁
About us
WAQI学院
College
联系WAQI
Contact us
logo
在山上与居民同住|客栈设计
发布于:2020-08-05 16:49 浏览:
这是农舍以现代方式诠释的度假屋。因为这座建筑位于南蒂罗尔州最著名的白云岩景观之一,为了应对这一挑战,设计师设计了两套不同的独立房屋。“父母的房子”只有两代人,“儿子的房子”只有两代人。两座房子彼此靠近,度假公寓靠近其他建筑,但有一个独立的入口。
项目信息
设计公司:Studio Architect Manuel Benedikter
项目类型:建筑设计、客栈设计、景观规划设计
位置:意大利
▽ 建筑外观
建筑物所在的坡度陡峭以及与邻居的距离使得设计过程非常困难。房屋群沿着自然的山坡而行。这样,从每套公寓中您都可以欣赏到盖斯勒山脉的绝妙景色,尽管如此,每套公寓仍设法保持其亲密感。
这座房子的灵感来自于现有的谷仓,屋顶倾斜度相同,可以更好地适应环境。立面的材料反映了建筑物内的人:客户的房屋被木条覆盖,它们与木制谷仓一起创造了和谐的全景,客人的公寓和公共区域均由白色石膏制成。大型阳台和屋顶由坚固的棕色金属板框架固定在一起,这些框架指出了客户的公寓。
两种不同的表面标志着该区域的使用:用于农民和客人私人区域的木材和用于区域的石材,每个人都可以使用。公寓之间的庭院可用来烧烤或举办小型聚会。在下面的顶层,还有另外三个可直接通往花园的旅游公寓。
▽ 室内设计
▽ 景观设计
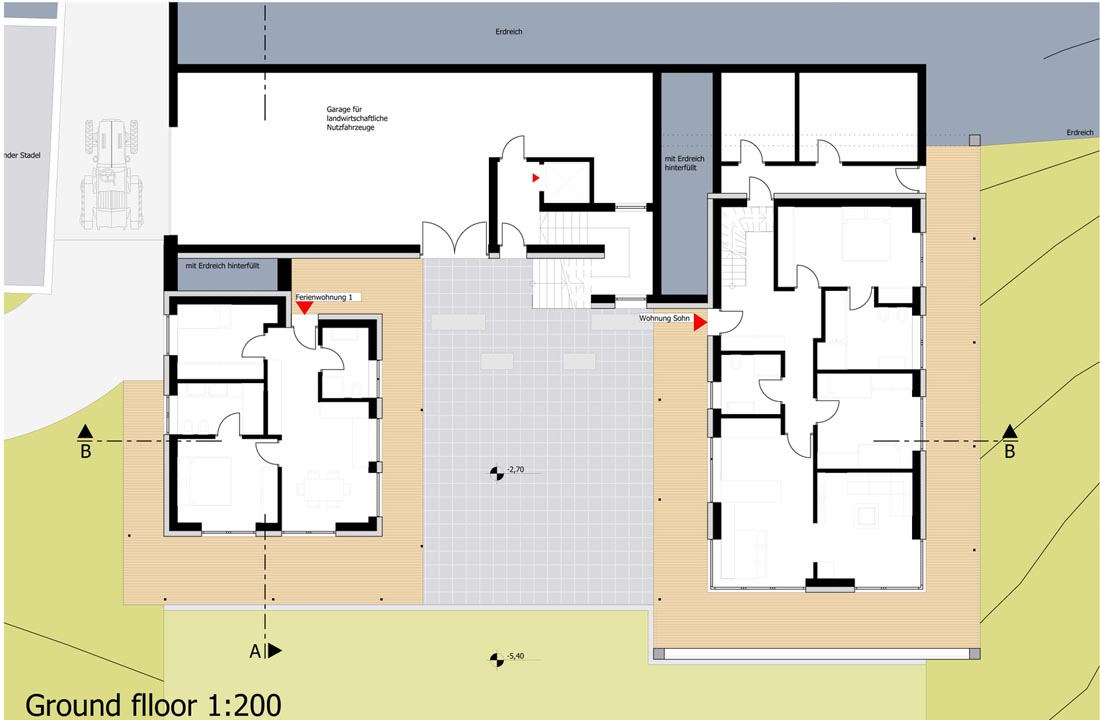
▽ 平面图
▽ 立面图
编后语:设计师始终使用传统材料,让客栈与小山村以及周围的景观完全协调。让旅客们能在这里享受自然的乐趣,是一个度过假期的好地方。更多关于客栈设计、青旅设计、建筑设计的案例,请点击下面的拓展阅读进行跳转阅读。
来源网站:www.archdaily.com
翻译整理:WAQI
拓展阅读
故事未了的江湖客栈|绿境景色花园客栈设计
青旅社区---阳朔东院弥香客栈
三亚洲际度假酒店[酒店设计]
景逸庭院式精品酒店改造
设计终究是一个不断学习的过程,WAQI作为一家学习型设计事务所,通常在设计的过程中,会分析甚至于拆建一些案例,
不定期分享一些心得。请扫描并关注公众号,更多精彩,与您共享。。。
马上分享WAQI:
微信
QQ空间
新浪微博
上一个
下一个