首页
Home
WAQI做些什么
Services
WAQI的作品
Projects
WAQI是谁
About us
WAQI学院
College
联系WAQI
Contact us
logo
半开放的内部花园建筑|旧房改造
发布于:2020-08-06 15:25 浏览:
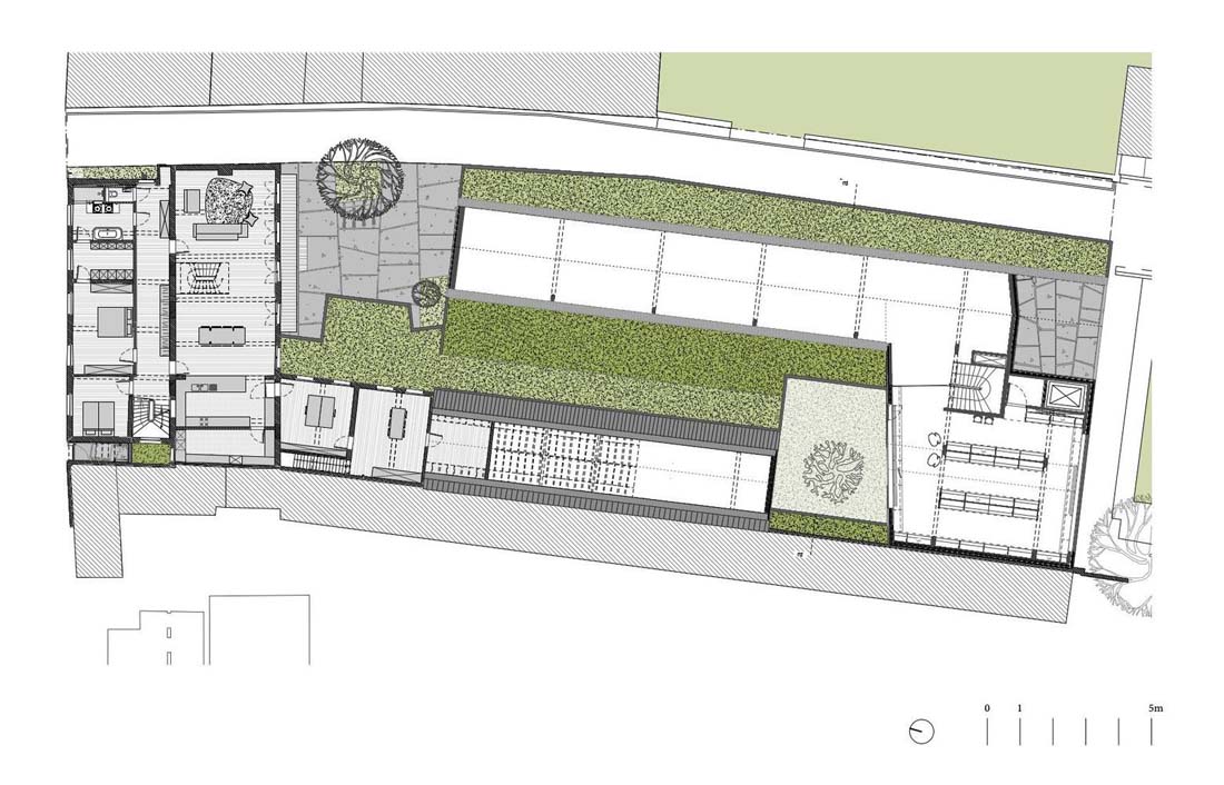
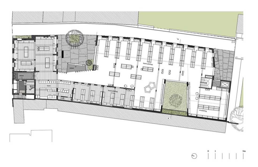
设计师保存并修复了吉尔(Geel)的旧院舍,从而保留了房间的结构。在后面,新建筑物与具有历史价值的建筑物相连。宽敞且半开放的内部花园使迪安妮尔和新建筑之间形成了距离,新建筑共同容纳了一家大型鞋店。从第一个内部花园中,客人可以通过内部区域的新“大厅形”空间看公园的某些视角。
通往大厅山脊的开放性进一步增强了这一点。各种内部花园的切口将新建筑分解为更小的组件。天井使建筑物绿色开放,从而创造了绿色开放的内部区域。新建筑物的屋顶结构继续在分支机构及其附属建筑物的倾斜屋顶上串联。一方面,这种轮廓确保了建筑物与历史遗产。另一方面,屋顶表面的阴影确保了小城镇织物在规模上的整合。新建筑的屋顶是绿色的屋顶,上面长满草和花。
项目信息
设计公司:Robbrecht&Daem architecten,murmuur architecten
项目类型:建筑设计、旧楼改造、景观规划设计
位置:比利时
▽ 建筑外观
▽ 室内设计
▽ 景观设计
▽ 平面图
▽ 立面图
编后语:绿色的屋顶给建筑物带来一定的友好性。设计师在保留原建筑的同时也给建筑设计了新的不一样的生态建筑,让整个建筑充满了活力与生命力。更多关于旧楼改造、生态建筑、建筑设计的案例,请点击下面的拓展阅读进行跳转阅读。
来源网站:www.archdaily.com
翻译整理:WAQI
延伸阅读
中山产业园改造
景逸庭院式精品酒店改造
昆明教场北路旧房改造项目
WAQI建筑改造案例之蓝豹One·AI智慧谷改造项目
故事未了的江湖客栈|绿境景色花园客栈设计
设计终究是一个不断学习的过程,WAQI作为一家学习型设计事务所,通常在设计的过程中,会分析甚至于拆建一些案例,
不定期分享一些心得。请扫描并关注公众号,更多精彩,与您共享。。。
马上分享WAQI:
微信
QQ空间
新浪微博
上一个
下一个