首页
Home
WAQI做些什么
Services
WAQI的作品
Projects
WAQI是谁
About us
WAQI学院
College
联系WAQI
Contact us
logo
现代混合艺术酒店|青旅设计
发布于:2020-08-11 09:40 浏览:
WOM Allenby是位于地中海海滨城市特拉维夫的一家新英式酒店品牌中的第一家。这家酒店位于Allenby街21号,距离特拉维夫的海滨长廊只有一个街区,提供48间时尚,私人和现代的单人或双人入住房。WOM的新型混合住宿专为当今的当代城市旅客而设计,他们注重设计,社区意识以及以钱包友好的价格住在市区的体验。
项目信息
设计公司:Gerstner Architects
项目类型:客栈设计、青旅设计、景观规划设计
位置:以色列
▽ 建筑外观
WOM Allenby分为三个房间类别,即单人房(1人),双人房(2人)和特大号房(2人)。酒店提供48个采用新颖时尚设计的客舱。每个吊舱均配有舒适的床、棉床单、书桌、水槽、空调、电视屏幕和音响系统、存储空间和私人保险箱。每两到三个房间在酒店的走廊上共用一个单人浴室。
WOM的创新设计坚持核心的可持续价值,每个吊舱均采用环保材料和施工方法进行开发。每个房间的墙壁均采用纤维素绝缘材料,并通过了隔音认证的隔板和门,可提供先进的隔热保护和隔音效果。每个吊舱隔音效果达到45分贝,符合以色列的严格酒店规定。该照明方案仅采用LED A级节能灯泡,并且将整个酒店的塑料使用量降至最低。
▽ 室内设计
▽ 细节设计
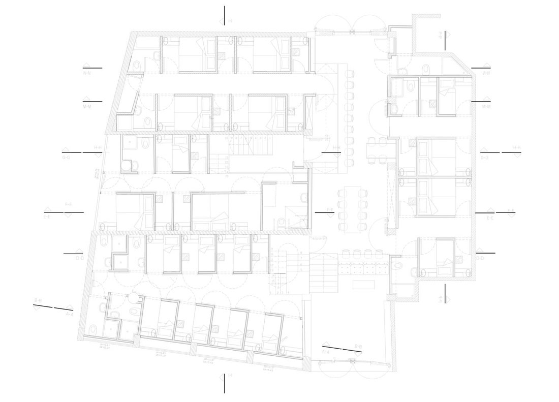
▽ 平面图
▽ 立面图
编后语:在密集城市中,空间有限和价格昂贵的前提下,设计师将建筑改造为适合当代社会、满足基本需求而设计的青旅,在青旅内背包客可以在每一个自己的房间、床位上能体验到酒店的感觉。更多关于旧楼改造、青旅设计、建筑设计的案例,请点击下面的拓展阅读进行跳转阅读。
来源网站:www.archdaily.com
翻译整理:WAQI
拓展阅读
故事未了的江湖客栈|绿境景色花园客栈设计
青旅社区---阳朔东院弥香客栈
三亚洲际度假酒店[酒店设计]
景逸庭院式精品酒店改造
设计终究是一个不断学习的过程,WAQI作为一家学习型设计事务所,通常在设计的过程中,会分析甚至于拆建一些案例,
不定期分享一些心得。请扫描并关注公众号,更多精彩,与您共享。。。
马上分享WAQI:
微信
QQ空间
新浪微博
上一个
下一个