首页
Home
WAQI做些什么
Services
WAQI的作品
Projects
WAQI是谁
About us
WAQI学院
College
联系WAQI
Contact us
logo
校园里的村落|营地设计
发布于:2020-08-11 09:27 浏览:
校园村落是一所私立学校的改造项目,其目的是改善目前全国最贫穷的学校的健康状况,并且为Torup当地社区创造一个跨越年龄和兴趣的社交集会点。 Torup是着名的丹麦生态村,位于Halsnæs半岛中部,是丹麦首都地区的一部分。
该项目旨在通过提高学校的吸引力来支持Halsnæs市的增长战略,同时巩固了学校的各方面质量来作为社会培训,户外活动和公共生活的领域。
项目信息
设计公司:MUTOPIA
项目类型:营地设计、营地规划设计、景观规划设计
位置:丹麦
▽ 设计构想
学校场地包括一个需要重新铺设的路面、改进进入其中一个建筑物的通道、作为停车场的前院的学校庭院,以及以加强其作为活动区的潜在发展。 前院已经变成一个村落广场,而庭院已经变成一个户外教室,设有一个提供有趣的连接坡道楼梯,这里同时可开办学校相关的活动和聚会。
学校前面的停车场已经变成了一个公共空间,它由一个多功能的运动场所包围,活动设施的形状像极了令人乡村生活中充满家乡气息的山墙房子。 可以作为内外两边长凳的山墙房屋由一个连续的围栏连接起来,可挡住打出的球,并在校园内创建了一个村落。
▽ 游戏设计
村落的房子向村庄广场方向开门,邀请每个人进入这个内部的超大主题空间。它适合有调理的学习和娱乐活动,也可作为心血来潮的玩所。新兴的公共空间在村落和学校之间建立了强有力的联系:通过补给每日能量,学校如发电机般加强着村落的“脉搏”,这反而有助于加强孩子作为积极有形的公民的自我形象 。
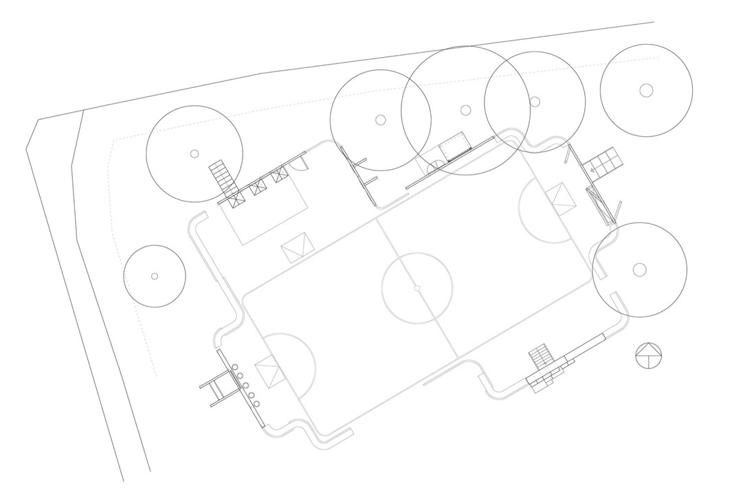
▽ 平面图
▽ 立面图
编后语:设计师将校园角落改造规划为一个村落,连接学校与周边居民的关系,让孩子们的生活与学习联系起来,形成一个良好的循环体系,让孩子们能够在生活中学习,在学习中生活。更多关于营地设计、游戏规划设计、建筑设计的案例,请点击下面的拓展阅读进行跳转阅读。
来源网站:www.archdaily.com
翻译整理:WAQI
延伸阅读
营地教育概述
营地教育——父母与孩子共同成长的最好路径之一
营地教育,如何在中国落地开花?
以后要做的事|营地教育落地中国的概述
怀来县桑干农业生态园
星野中国—2030国际生态营地概念规划
新村湖旅游度假项目景观概念设计
设计终究是一个不断学习的过程,WAQI作为一家学习型设计事务所,通常在设计的过程中,会分析甚至于拆建一些案例,
不定期分享一些心得。请扫描并关注公众号,更多精彩,与您共享。。。
马上分享WAQI:
微信
QQ空间
新浪微博
上一个
下一个