首页
Home
WAQI做些什么
Services
WAQI的作品
Projects
WAQI是谁
About us
WAQI学院
College
联系WAQI
Contact us
logo
由村民自己建造的度假村|乡村改造设计
发布于:2020-08-11 09:17 浏览:
Leti 360度假村位于海拔2350米(7700英尺),坐落在印度喜马拉雅山脉的丘陵地带。与该场地距离最近的公路有两小时的步行距离,那是一条被开凿出来的狭窄的山路,一部分的山路被当地村民用来日常活动和运输。这条小路上最热闹的地方是建在高原上的中央餐厅,四周环绕着的四个客房建在了梯田的边上。在这里朝北可以看见Hiramony冰川和南达科特的峰(6861米/ 22510英尺),朝南能够看见尼泊尔东部地平线上的山峰,而拉姆恒河位于陡峭的山谷和山道之间。
项目信息
设计公司:Studio Mumbai
项目类型:建筑设计、乡村改造设计、乡村规划设计
位置:印度
▽ 改造规划前
▽ 设计构想
度假村在设计上受到了在该地区建筑的固有限制的影响,考虑到对环境的影响和对文化的敏感性,以及对本土材料,气候和地形仔细观察后产生的考量。最终的建筑既具有现代性,又有恒久性。建筑物主要由干叠层石构成,这是该地区的传统。使用的柚木框玻璃窗能够为室内带来充沛的自然光,将客人的视觉直观地与周围的景观联系在一起。从当地开采出来的石材通过牲畜运送到施工场地,所有其他的建筑材料,包括柚木木材,玻璃,铝,铜,和帆布以及与定制家具一起以同样的方式运送的现场。
该项目建设施工用了七个月的时间,有70多个当地的石匠,木匠和工匠等前来帮助。因为它的位置偏远,场地又没有电,存储的太阳能用来提供热水和为客房的太阳能灯充电。
就是在这样的环境下,该项目为游客提供了一个简单的小憩场所,让客人在这里有一种归属感。该项目只计划有10年的寿命,即使拆除后也不会对环境造成很大的影响。
▽ 建筑外观
现在,当地的农民继续在住宅之间的田间劳作,在山坡放牧,羊群和牛群在草地上觅食形成了一幅美丽的景色。一些苔藓,蕨类植物扎根在石墙的结构中间,逐渐开始将建筑融入到大自然中间。
▽ 室内设计
▽ 景观设计
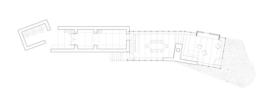
▽ 平面图
▽ 立面图
编后语:设计师考虑到设计对环境的影响,使用当地材料,在建筑内使用的材料也是可回收的对自然损伤较少的材料。虽然材料上当地化,但是整体度假村给人的感觉是宾至如归,让客人有一种归属感。更多关于乡村规划设计、乡村改造设计、建筑设计的案例,请点击下面的拓展阅读进行跳转阅读。
来源网站:www.archdaily.com
翻译整理:WAQI
拓展阅读
大凉山沙马普尔彝族人文生态村规划设计
新村湖旅游度假项目景观概念设计
穆家峪桃源度假村概念设计
湄潭大健康旅游小镇
汤沟小镇概念性规划
罗婺文化特色小镇
燕山文化新城概念规划
千灯镇安居小区
设计终究是一个不断学习的过程,WAQI作为一家学习型设计事务所,通常在设计的过程中,会分析甚至于拆建一些案例,
不定期分享一些心得。请扫描并关注公众号,更多精彩,与您共享。。。
马上分享WAQI:
微信
QQ空间
新浪微博
上一个
下一个