首页
Home
WAQI做些什么
Services
WAQI的作品
Projects
WAQI是谁
About us
WAQI学院
College
联系WAQI
Contact us
logo
公寓的垂直花园|生态设计
发布于:2020-08-11 09:49 浏览:
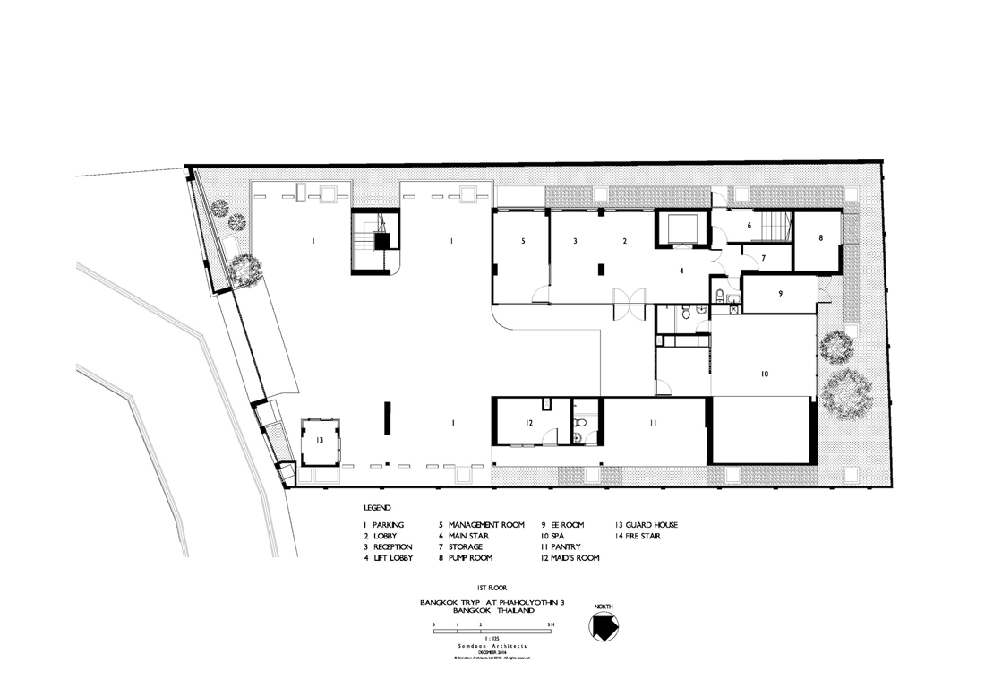
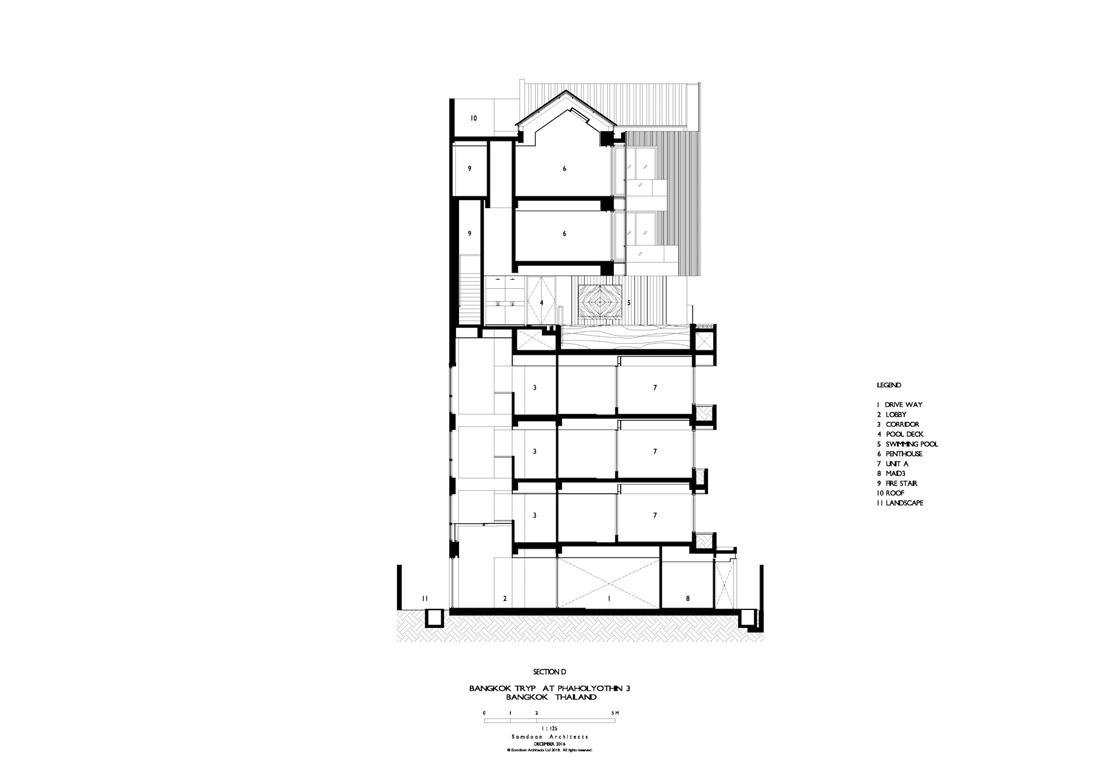
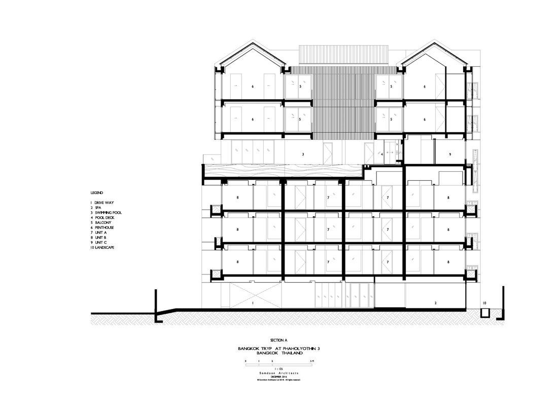
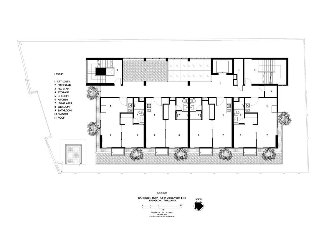
Bangkok TRYP是一个位于市中心的混合住宅项目,因为该基地只有少量的绿地,所以设计者以“垂直花园”为主要手法来为居民与邻居创造绿色环境。大厅,水疗中心与停车场位于地面层,二层至四层为公寓所在,五层是公共设施,六,七楼则是业主私宅。
项目信息
设计公司:Somdoon Architects
项目类型:生态设计、生态建筑、景观规划设计
位置:泰国
▽ 设计构想
建筑物北面与一栋高层建筑相邻,因此配置服务性的楼梯,电梯与走廊。公寓的单人走廊是半户外空间,带有贯通三层的井眼,使自然光能到达一楼大厅。且建筑立面均布中等高度的树木与灌木丛和设计空气冷凝铝屏风,相邻遮阳装置也使景观更接近居民。
所有公共设施均位于五层,方便区分出业主周围与下方的出租地点。其中无边际泳池人士拥有景观优美的戏水空间,且前方的健身房也可欣赏到泳池与花园景致。
▽ 建筑外观
顶楼二层建筑以人字形屋顶表现,就像一栋建筑物在建筑顶部的房屋。主客厅空间内部屋顶造型设计,以达最大高度。由于建筑物大部分朝南,因此设计可互动的铝制遮阳屏风,温暖的木棕色屏风交替过滤建筑的阳光与热量,甚至为业主提供私密视野。
▽ 室内设计
▽ 景观设计
▽ 细节设计
▽ 平面图
▽ 立面图
编后语:木结构外墙与植物结合,让整个公寓变得柔和起来,显得更加地清凉、自然,设计师将公寓的景观设计为垂直花园,让公寓的建筑有了自然的外衣,也让公寓内的住户能够收益于垂直花园带给的建筑降温以及雨水收集。更多关于景观规划设计、生态设计、建筑设计的案例,请点击下面的拓展阅读进行跳转阅读。
来源网站:www.archdaily.com
翻译整理:WAQI
延伸阅读
三亚洲际度假酒店[酒店设计]
“消失”的接待中心|田园综合体设计的另一种可能性
大凉山沙马普尔彝族人文生态村规划设计
怀来农产品展示中心
汤沟小镇概念性规划
设计终究是一个不断学习的过程,WAQI作为一家学习型设计事务所,通常在设计的过程中,会分析甚至于拆建一些案例,
不定期分享一些心得。请扫描并关注公众号,更多精彩,与您共享。。。
马上分享WAQI:
微信
QQ空间
新浪微博
上一个
下一个