首页
Home
WAQI做些什么
Services
WAQI的作品
Projects
WAQI是谁
About us
WAQI学院
College
联系WAQI
Contact us
logo
充满生机的办公室|旧房改造
发布于:2020-08-20 10:01 浏览:
在设计与工程之间的长期合作中,设计师创建了一个工作场所,邀请人们去与他们产生共鸣,激励他们反思自己的知识并通过增加连接性来促进思想的开放共享。由此产生的工作场所为团队如何互动和开发创造性的工作方法创造了新的范例。
关键目标是通过鼓励需要的地方采用新的态度和行为,而又不会失去有价值的东西,来定义能够使企业发展的工作场所类型。它专注于期待理想的未来状态,并定义支持该愿景的工作场所类型。
项目信息
设计公司:Hassell
项目类型:建筑设计、旧楼改造、景观规划设计
位置:澳大利亚
▽ 室内设计
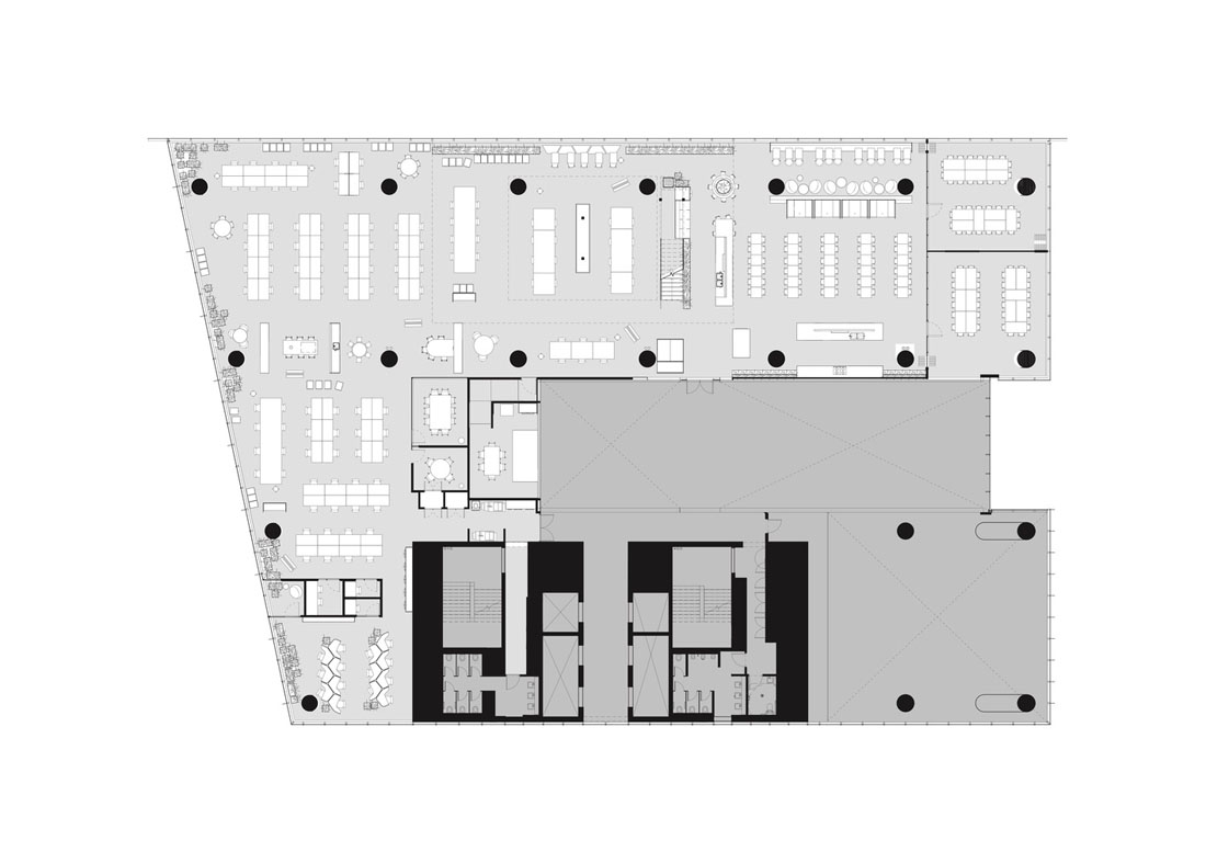
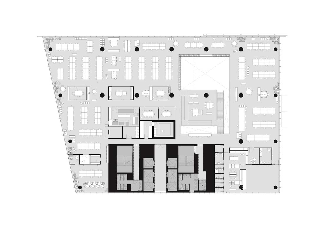
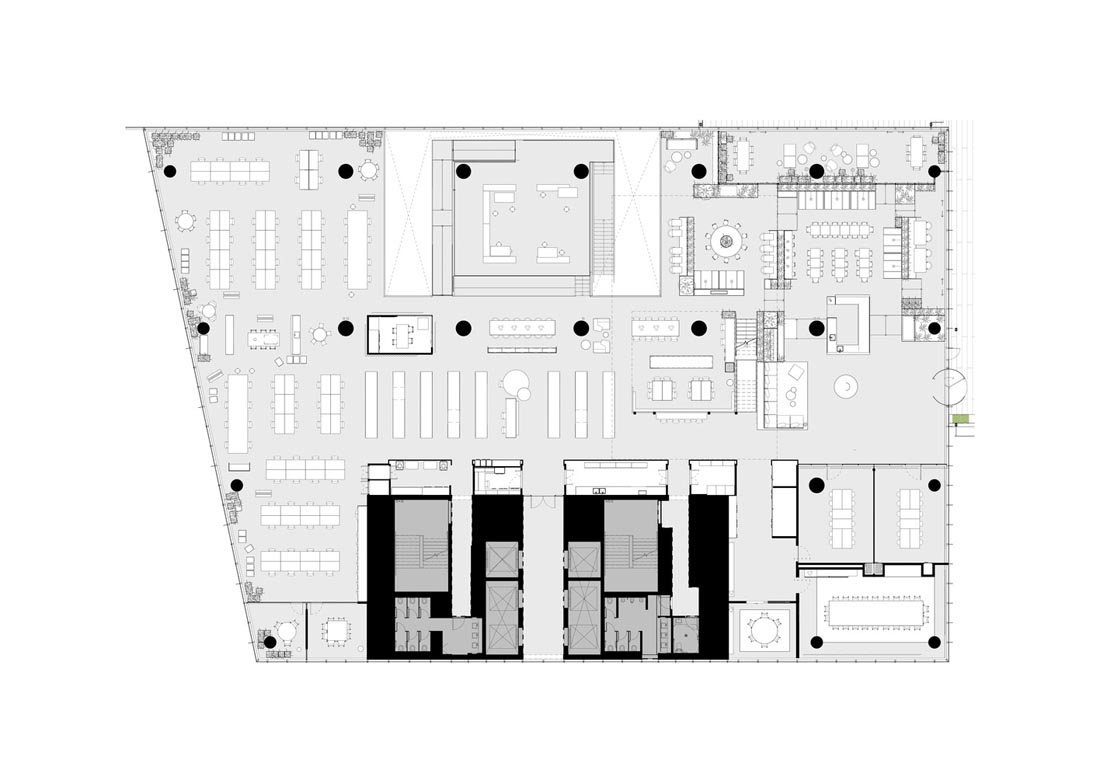
新的工作场所围绕两个重叠的空隙,从而形成一个单一的体积,而不是三个单独的层次。与将所有三个级别连接在一起相比,两个夹层有助于将卷扩展为级联协作。各种各样的工作类型包括正式和非正式的会议区域,设计工作室,实验室,工作厨房,培训室,私人项目室以及供客户和供应商使用的协同工作风格的咖啡馆,可实现思想和知识的不断共享。
新办公室还包括一个声音实验室,一个灯光实验室,一个制造商的空间和一个体验实验室,为团队提供了许多继续学习和开发新方法的机会。
▽ 平面图
编后语:设计师将一种新的、开放式的办公会议环境展示给我们,给我们提供了一种新的办公方式的可能性,在开放式的办公环境内实现思想的不断共享。更多关于生态设计、旧房改造、建筑设计的案例,请点击下面的拓展阅读进行跳转阅读。
来源网站:www.archdaily.com
翻译整理:WAQI
延伸阅读
中山产业园改造
景逸庭院式精品酒店改造
昆明教场北路旧房改造项目
WAQI建筑改造案例之蓝豹One·AI智慧谷改造项目
故事未了的江湖客栈|绿境景色花园客栈设计
设计终究是一个不断学习的过程,WAQI作为一家学习型设计事务所,通常在设计的过程中,会分析甚至于拆建一些案例,
不定期分享一些心得。请扫描并关注公众号,更多精彩,与您共享。。。
马上分享WAQI:
微信
QQ空间
新浪微博
上一个
下一个