首页
Home
WAQI做些什么
Services
WAQI的作品
Projects
WAQI是谁
About us
WAQI学院
College
联系WAQI
Contact us
logo
在玩耍中培养孩子的创造力|自然教育
发布于:2020-08-21 18:09 浏览:
瓜斯塔拉幼儿园充分体现Cucinella “创造性的同理心”的建筑理念,设计遵循当地气候环境特征和居民的真正需求,回应震后社会发展的需要。满怀同理心,扎根于本质关系关注人、环境和社会的真正诉求创造一个以用户为中心,新的生态友好环境。这是一个依据儿童教育愿景而设计的空间,处处都体现了设计师的同理心和创意,一切都旨在启发孩子们的行动、思想、和情感。
建筑再次借鉴了植物世界的“分散和集体智慧”,其中环境的变化(在这里对应空间的衔接)成为交流的工具,也就是孩子们互动和学习的工具。
校园建筑对于孩子们在学校的经历非常重要,因为他们是按季节认识而生活的,但对气候和季节一无所知。他们看到事情的发生,却不知道缘由因此。校园建筑也是一种教育形式,不仅是老师,建筑本身也会传达给学生一些信息。
项目信息
设计公司:MC A
项目类型:建筑设计、自然教育、营地规划设计
位置:意大利
▽ 设计构想
规划考虑到场地所在平原植被丰富的现状,结合孩子们对于世界认知的需求,构建整个总平面形态像鸟,形成趣味动物性隐喻,并与树木、灌木丛、花卉、建筑一起成为游戏玩耍、环境认知、教育教学综合性,玩学一体的乐园。
规划将建筑与景观相结合,颜色和形态呈现季相变化的花园使孩子们通过观察户外环境和植物的变化,辨识夏季和冬季。
▽ 设计效果图
瓜斯塔拉幼儿园的建筑元素如室内形状、陈设、空间组织、材料选择与光线、色彩、声音、触觉产生关联的感官认知系统,都根据孩子成长所需的教育而设计,结合低能耗的被动设计,友好的环境策略,运用创造性同理心的生态可持续设计的生动案例。
▽ 设计模型
▽ 建筑外观
▽ 室内设计
由于长时间处于建筑的室内,视野内的常规方形空间即是他们所认知的全部环境。因此,孩子们需要体验不一样的形状,将整个空间设计得像鲸鱼的腹部。这是一个孩子们可以有想象的空间概念,来源于一本著名的小说《木偶奇遇记》。所以,这座建筑的隐喻:内部空间的弯曲性和材料的温暖性,在情感上唤起对母体子宫的印象,给孩子带来安全感。
设计特别注重为儿童建立一种,与外部、自然变化和谐相处的关系。当孩子们在里面的时候,看整个建筑就像一个走廊,一个由许多不同房间构成的大房间。建筑的所有部分都与花园相连,连续空间的设计不是简单地为了贯穿空间,而是旨在通过游乐区和教室,激发孩子的好奇心和愉悦感。
孩子们可以在这些空间里停留,透过玻璃向外看。设计中将自然光线以及内外部空间一体化,建筑内部朝向各个方向的大面积玻璃幕墙,使内外部建筑边界为空,带来了极大的轻盈感。建筑物与外部环境完美融合,可以欣赏周围森林的壮丽全景。不间断的内部空间,没有一处区域具有阻隔和限制的作用,鼓励孩子们充满好奇心地使用与分享空间。
幼儿园的室内设计皆从满足孩子们的需求出发,儿童尺度的家具、桌子、椅子、充满童趣的玩具、游戏,真实再现了为孩子打造的家庭环境,使其能完全自由地活动和使用物品。室内的陈设忠实遵循着蒙特梭利学说的原则,
▽ 景观设计
建筑设有大面积的玻璃窗,简洁的同时允许封闭区域教室与外界进行交流互动。幼儿园的景观设计旨在为儿童提供运动、感觉和社交活动的场所。景观主要分为两个部分“感官之旅”和“冬季花园”。
“感官之旅”是一系列小型主题花园,从主入口开始按照顺序依次经过“蝴蝶花园”(视觉)、“声音花园”(听觉),然后“香气花园”(嗅觉)、“贪吃角”(味觉)最后到达“大拇指汤姆之路”(触觉)。
“冬季花园”是这座幼儿园的神奇之地,即使冬季,孩子们也可以在植物间玩耍和活动。该空间由儿童座椅和大型靠垫组成温室之外的区域,同样具有鼓励探索的效果。室外的竹园与其他花园的高度保持一致。
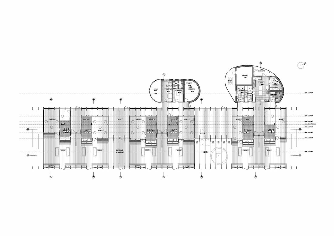
▽ 平面图
▽ 立面图
编后语:设计师运用创造性的同理心,建立建筑、孩子与气候、地域和环境的和谐关系。并多方面考虑与孩子成长相关的因素,让孩子们能够玩耍中培养想象力和创造力同时,尊重自然,尊重生态的可持续性。更多关于营地设计、自然教育、建筑设计的案例,请点击下面的拓展阅读进行跳转阅读。
来源网站:www.archdaily.com
翻译整理:WAQI
延伸阅读
营地教育概述
营地教育——父母与孩子共同成长的最好路径之一
营地教育,如何在中国落地开花?
以后要做的事|营地教育落地中国的概述
怀来县桑干农业生态园
星野中国—2030国际生态营地概念规划
新村湖旅游度假项目景观概念设计
设计终究是一个不断学习的过程,WAQI作为一家学习型设计事务所,通常在设计的过程中,会分析甚至于拆建一些案例,
不定期分享一些心得。请扫描并关注公众号,更多精彩,与您共享。。。
马上分享WAQI:
微信
QQ空间
新浪微博
上一个
下一个