首页
Home
WAQI做些什么
Services
WAQI的作品
Projects
WAQI是谁
About us
WAQI学院
College
联系WAQI
Contact us
logo
老宅的现代改造|旧房改造
发布于:2020-08-31 17:31 浏览:
扩建部分是前乡村砌砖厂建筑群的一部分。 它被添加到以前的砖匠在十九世纪中叶被改造的房屋中。处于废墟状态的砖窑十年前被重建成工作室。第二次世界大战后,砌砖厂停止生产时,在该基地设立了一个果园。
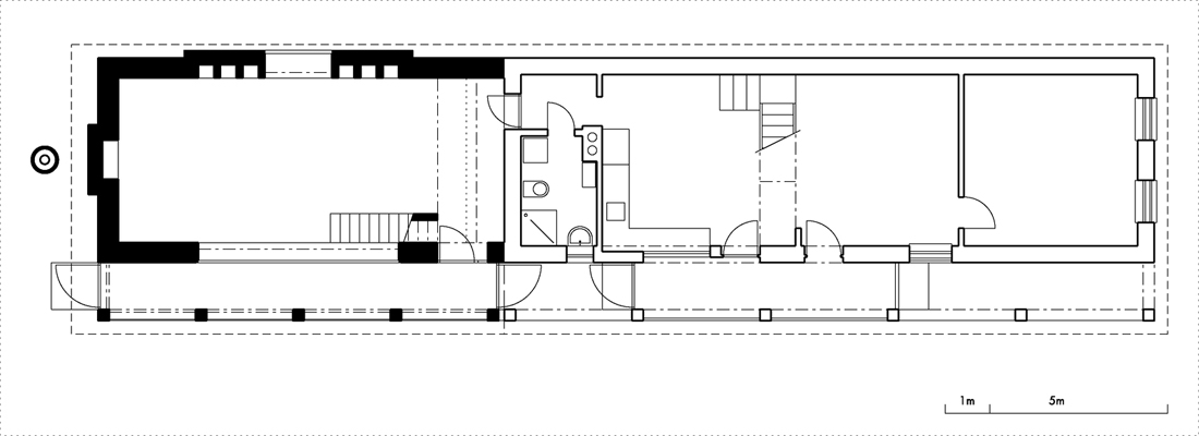
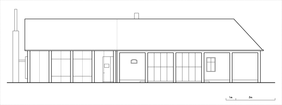
最初的砖瓦匠之家是带有门廊的典型的乡村风格建筑,带有倾斜的屋顶。门廊的设置实际上是非常明智的——就像当地的其他房屋一样。 连接到纵向主体上的门廊具有可以满足房屋外部和内部界面的独特实用功能。
扩建部分实际上是对现有房屋和门廊的轮廓延伸。这是一个开放空间设计,没有用通常的天花板的变化来分隔居住区与阁楼区,面积适中的新起居室拥有宽敞的空间体验。
项目信息
设计公司:Architekti B.K.P.Š
项目类型:建筑设计、旧楼改造、景观规划设计
位置:斯洛伐克
▽ 建筑外观
屋顶桁架是两个相互支撑的倾斜平板的结构,并设有椽子的典型构造方案。屋顶桁架中使用的所有砖均进行了标记。建筑中超过2/3的砖来自原来的砖厂,其余来自附近地区消失的砖窑。这种屋顶桁架的装饰性马赛克状材料在外观上有不同的阴影和粗糙的表面肌理,这是手工砖生产中的典型特征。
▽ 室内设计
▽ 平面图
▽ 立面图
编后语:设计师也没有对建筑大动干戈,只是在原建筑的基础上进行扩建,并对室内空间进行重新规划。由砖块制成的墙壁的内部和外部均有经典的石灰灰泥,让扩建部分使用的材料也是一致的,在某种意义上,它是一个具有未完工风格的建筑。更多关于旧楼改造、旧房改造、建筑设计的案例,请点击下面的拓展阅读进行跳转阅读。
来源网站:www.archdaily.com
翻译整理:WAQI
延伸阅读
中山产业园改造
景逸庭院式精品酒店改造
昆明教场北路旧房改造项目
WAQI建筑改造案例之蓝豹One·AI智慧谷改造项目
故事未了的江湖客栈|绿境景色花园客栈设计
设计终究是一个不断学习的过程,WAQI作为一家学习型设计事务所,通常在设计的过程中,会分析甚至于拆建一些案例,
不定期分享一些心得。请扫描并关注公众号,更多精彩,与您共享。。。
马上分享WAQI:
微信
QQ空间
新浪微博
上一个
下一个