首页
Home
WAQI做些什么
Services
WAQI的作品
Projects
WAQI是谁
About us
WAQI学院
College
联系WAQI
Contact us
logo
自然、舒适的“积木”幼儿园|游戏设计
发布于:2020-09-01 10:44 浏览:
项目把一座现存的小镇房屋改造成了位于越南胡志明市一区的一所私立幼儿园。
建筑要集多种功能于一身就需要灵活的空间适应性,像是允许小的私人空间转换成大的公共或是项目空间,又或是在顺从房屋原有结构元素的前提下适当地扩展建筑。
项目信息
设计公司:KIENTRUC O
项目类型:营地设计、旧楼改造、游戏设计
位置:越南
▽ 设计构想
▽ 建筑外观
建筑师们想要一个懵懂儿童在空间里感到自然、舒适,同时也可以让他们在安全和自由的气氛下探索世界。
从大视角来看,一簇小空间可以刺激和鼓励孩子们走出去探索个人空间外的世界。灵活的空间组织和建筑师们期望孩子们能得到的教育体验。
▽ 室内设计
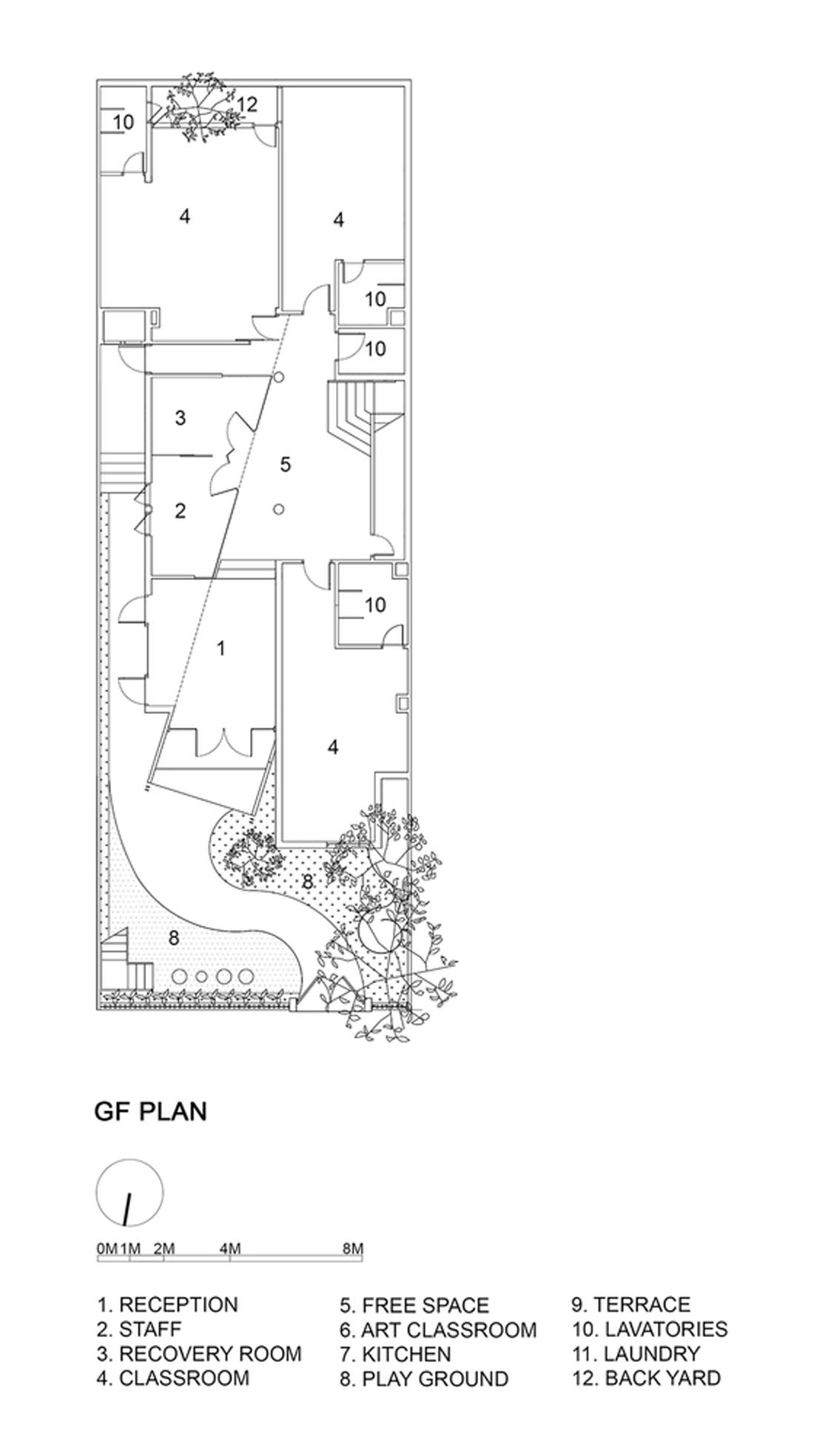
▽ 平面图
编后语:设计师除了对幼儿园进行了自然、舒适的游戏,还把一个老旧的整体空间变成了一个敞亮的有生命力的幼儿园,让孩子们能够在这个自由的气氛里探索世界。更多关于旧楼改造、营地设计、游戏设计的案例,请点击下面的拓展阅读进行跳转阅读。
来源网站:www.archdaily.com
翻译整理:WAQI
延伸阅读
营地教育概述
营地教育——父母与孩子共同成长的最好路径之一
营地教育,如何在中国落地开花?
以后要做的事|营地教育落地中国的概述
怀来县桑干农业生态园
星野中国—2030国际生态营地概念规划
新村湖旅游度假项目景观概念设计
设计终究是一个不断学习的过程,WAQI作为一家学习型设计事务所,通常在设计的过程中,会分析甚至于拆建一些案例,
不定期分享一些心得。请扫描并关注公众号,更多精彩,与您共享。。。
马上分享WAQI:
微信
QQ空间
新浪微博
上一个
下一个