森林工厂|旧房改造
发布于:2020-10-14 15:28  浏览:

这个曾经的电子设备制造工厂在此次改造设计中被构想成了一片森林,植被渗透、环绕着整栋建筑,最大化地创造了与自然的联系,主要表现在绿色、微风感、气味、声音和触感方面。
 
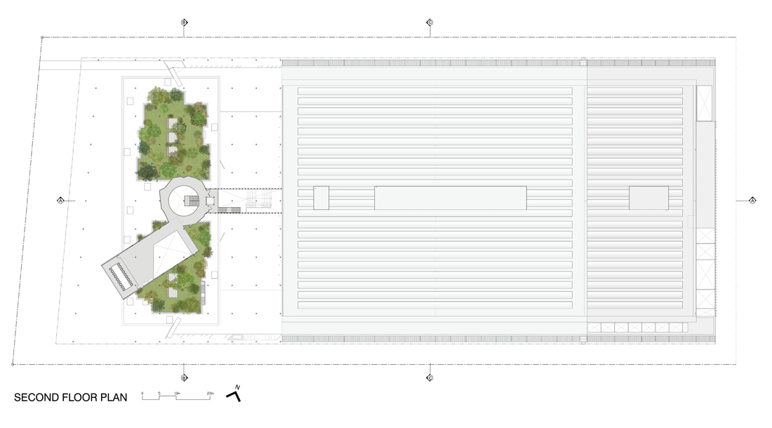
茂密“森林”形成的天然顶棚使办公区和庭院相互之间更加协调统一,同时也能保护人们免受热带阳光的炙烤。办公楼层与屋顶花园直接相通,以鼓励员工外出休息、会面或者放空自己。
 
 
 
 
 
 
项目信息
设计公司:Design Unit Architects
项目类型:建筑设计、旧楼改造、景观规划设计
位置:马来西亚
 
 
 
 
 
 
 
▽ 建筑外观

 
 
 
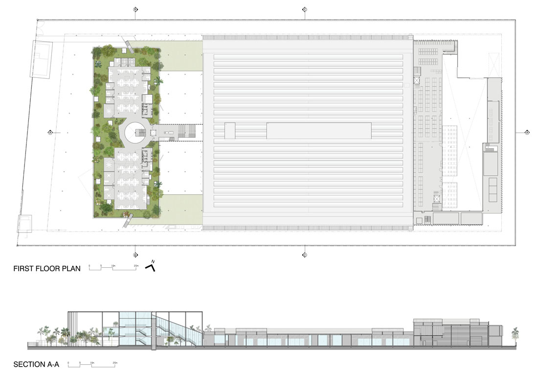
一个绿色的庭院将办公室和工厂分隔开来,两个空间均有景可观,有通道相连。庭院上空的桥连接着办公室和生产区,这条流线成为了会议、休息和演讲的空间。
 
从通过高窗玻璃可以看到工厂外的风景和天空,独立的混凝土散热片和屋顶百叶窗使玻璃窗免受阳光照射。雨水从屋顶喷口倾泻而下,加深了人们对于热带风暴的认识,雨水最后会流向用于景观灌溉的储水池。
 
建筑接收的是整个工厂地板上的自然漫射光,减少对人工照明的依赖,再结合冷水地板铺地冷却和尖端空调技术,将能耗降低到类似规模的传统工厂的一半。
 
▽ 室内设计

 
 
 
 
 
 
 
“森林”式的设计手法旨在为所有员工创造一个有激励作用、有意义的工作环境——森林将成为建筑和企业的对外展示形象。森林对于大气候和小气候都具有重要意义,对人们的身心健康也是至关重要。
 
设计师对工厂的天窗做了优化设计,以保证日间工作环境的进光量。通过模拟和日光测量实验,结果表明工厂地板实现了全年无眩光的均匀采光。可调光响应了LED照明设备,独立照明确保了工厂所需光照量的供给。
 
▽ 景观设计

 
 
 
 
 
 
 
 
 
 
 
▽ 平面图

 
 
 
 
▽ 立面图

 
 
 
 
 
 
 
 
 
编后语:设计师在进行旧厂房改造时,主要采用混凝土和钢结构,配上玻璃和绿植景观。简单材料的运用,以及舒服舒适的景观设计,让工厂抛弃了原来沉闷的形象,摇身一变成为一个绿色的森林。更多关于旧楼改造、旧房改造、建筑设计的案例,请点击下面的拓展阅读进行跳转阅读。
 
 
 
来源网站:www.archdaily.com
翻译整理:WAQI






延伸阅读
中山产业园改造
景逸庭院式精品酒店改造
昆明教场北路旧房改造项目
WAQI建筑改造案例之蓝豹One·AI智慧谷改造项目
故事未了的江湖客栈|绿境景色花园客栈设计




设计终究是一个不断学习的过程,WAQI作为一家学习型设计事务所,通常在设计的过程中,会分析甚至于拆建一些案例,
不定期分享一些心得。请扫描并关注公众号,更多精彩,与您共享。。。