首页
Home
WAQI做些什么
Services
WAQI的作品
Projects
WAQI是谁
About us
WAQI学院
College
联系WAQI
Contact us
logo
停车场的别样小营地|营地设计
发布于:2020-10-15 17:59 浏览:
停车场应成为城市不可分割的一部分。设计师将传统的停车场结构创造一个吸引人的绿色外墙,并鼓励人们使用屋顶空间。
除了隐藏停车结构之外,设计师还提出了一个概念,该概念可以增强结构网格的美感,同时又可以打破大型立面的规模。与网格相关的节奏中放置了一个植物盒子系统,该系统引入了新的比例,同时还在整个立面上分布了绿色植物。
项目信息
设计公司:JAJA Architects
项目类型:建筑设计、营地设计、景观规划设计
位置:丹麦
▽ 设计构想
立面上的植物箱网格被两个大型公共楼梯穿过,这些楼梯具有连续的栏杆,成为屋顶上的梦幻般的游乐场。从单纯的栏杆变成了秋千,球笼,丛林体育馆等等。从街道上看,栏杆实际上牵着游客,营地邀请他们参观屋顶景观,欣赏哥本哈根海港的壮丽景色。
▽ 建筑外观
▽ 屋顶营地设计
▽ 景观设计
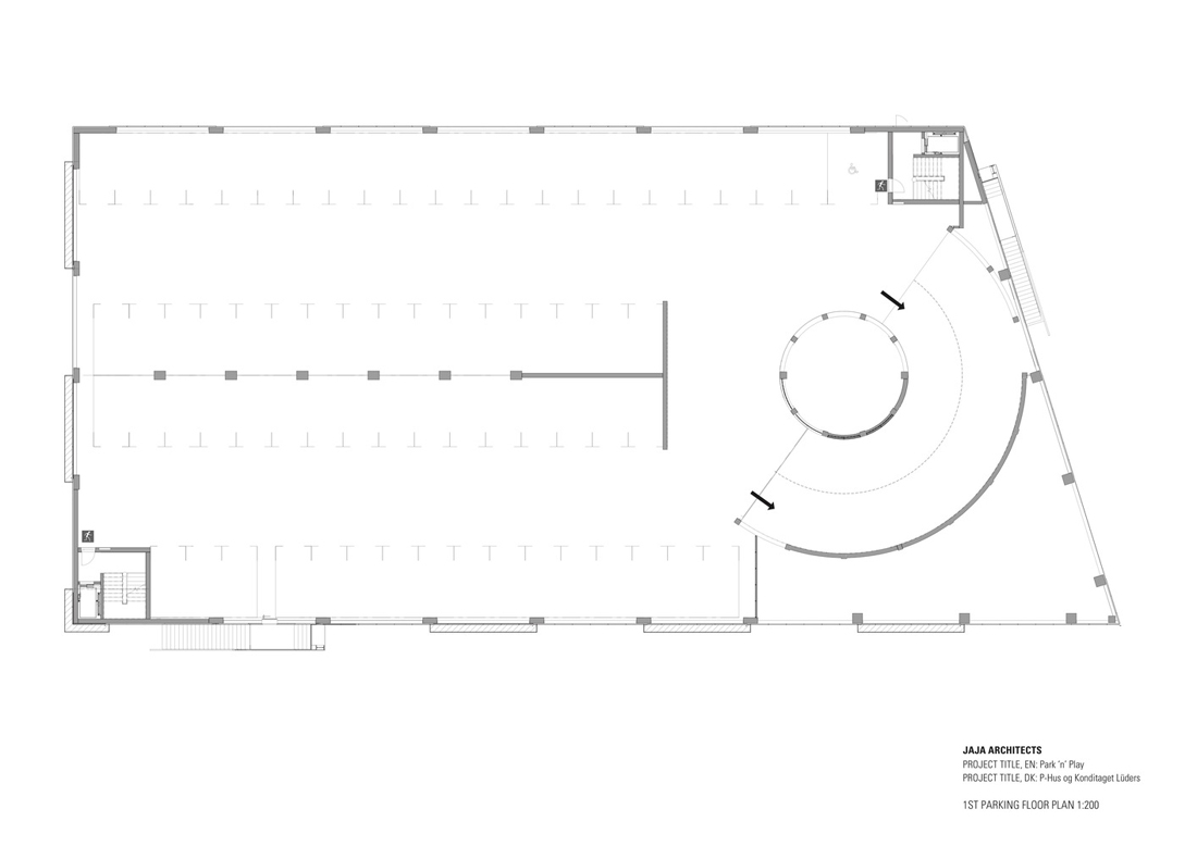
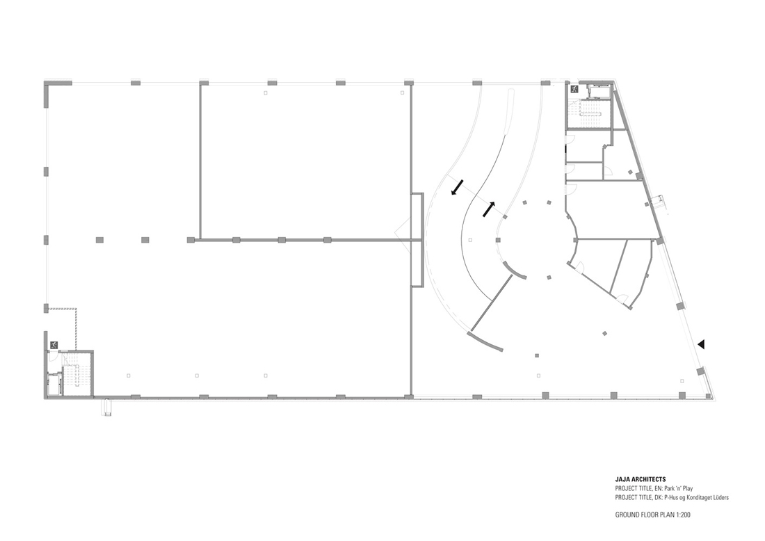
▽ 平面图
▽ 立面图
编后语:设计师将传统停车场的单功能使用变成一个功能性的停车结构。除此之外,这也是一个吸引人的社区营地公共空间,让单调的停车空间变得立体化、功能化、多样化、趣味化。这是一个在屋顶上的小营地项目,也是社区的另类公共空间,让屋顶也能变得更加有趣充满活力。更多关于营地设计、游戏设计、景观规划设计、建筑设计的案例,请点击下面的拓展阅读进行跳转阅读。
来源网站:www.archdaily.com
翻译整理:WAQI
延伸阅读
营地教育概述
营地教育——父母与孩子共同成长的最好路径之一
营地教育,如何在中国落地开花?
以后要做的事|营地教育落地中国的概述
怀来县桑干农业生态园
星野中国—2030国际生态营地概念规划
新村湖旅游度假项目景观概念设计
设计终究是一个不断学习的过程,WAQI作为一家学习型设计事务所,通常在设计的过程中,会分析甚至于拆建一些案例,
不定期分享一些心得。请扫描并关注公众号,更多精彩,与您共享。。。
马上分享WAQI:
微信
QQ空间
新浪微博
上一个
下一个