首页
Home
WAQI做些什么
Services
WAQI的作品
Projects
WAQI是谁
About us
WAQI学院
College
联系WAQI
Contact us
logo
四季皆宜的池塘边度假小屋|生态建筑
发布于:2020-05-25 15:45 浏览:
在加拿大安大略省米福德小镇的乔治亚湾附近,有一间四季皆宜的度假小屋。该住宅的形式和空间设计均参照了在美国南部十分常见的“风廊棚屋”。建于池塘边上的两室小屋容纳了储藏间和桑拿房,它们中间也有一个与棚屋相似的迷你通风廊。
卧室和起居空间分别位于风廊两侧,中间地带一个16平方英尺的开口为住户提供了可与周围环境亲密接触的户外起居空间。小屋坐落在一片空地边缘,之前面朝湿地开放的一侧现已基本封闭,仅留出一个矩形开口来与房主多年前建造的房屋保留联系。
项目信息
设计公司:WORKS OFFICE of Brian O’Brian Architect
项目类型:建筑设计、生态建筑、景观规划设计
位置:加拿大
▽ 建筑外观
草地从空地向上蔓延,穿过风廊,又向下途经菜园一直延伸到远处的湿地。在这里,人与自然景观的联系显得十分紧密。房屋内部几乎完全由桦木胶合板和白橡木地板制成,它就像安大略森林中一个未经修饰的木制容器。屋子外部由未经处理的水平榫舌和风化成银灰色的雪松木板构成,屋顶则覆盖着波纹钢板。
▽ 室内设计
▽ 景观设计
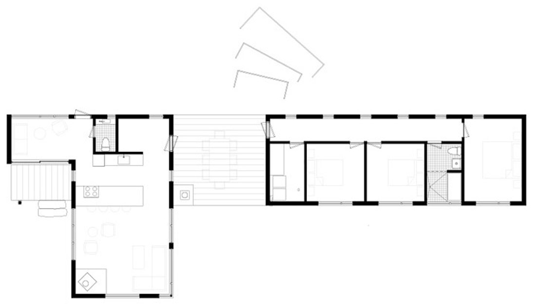
▽ 平面图
编后语:池塘边的度假小屋设计主要是依照现在地形环境专门设计的生态度假小屋,设计师用最基础的木结构,搭建了一个棚屋式度假小屋,原木色的建筑,中间镂空的设计,让人身处自然中,陡然升起一种温馨的安逸感。更多关于生态建筑、生态设计、建筑设计的案例,请点击下面的拓展阅读进行跳转阅读。
来源网站:www.archdaily.com
翻译整理:WAQI
延伸阅读
三亚洲际度假酒店[酒店设计]
“消失”的接待中心|田园综合体设计的另一种可能性
大凉山沙马普尔彝族人文生态村规划设计
怀来农产品展示中心
汤沟小镇概念性规划
设计终究是一个不断学习的过程,WAQI作为一家学习型设计事务所,通常在设计的过程中,会分析甚至于拆建一些案例,
不定期分享一些心得。请扫描并关注公众号,更多精彩,与您共享。。。
马上分享WAQI:
微信
QQ空间
新浪微博
上一个
下一个