首页
Home
WAQI做些什么
Services
WAQI的作品
Projects
WAQI是谁
About us
WAQI学院
College
联系WAQI
Contact us
logo
夏日降温露台景观设计|生态设计
发布于:2020-07-31 15:23 浏览:
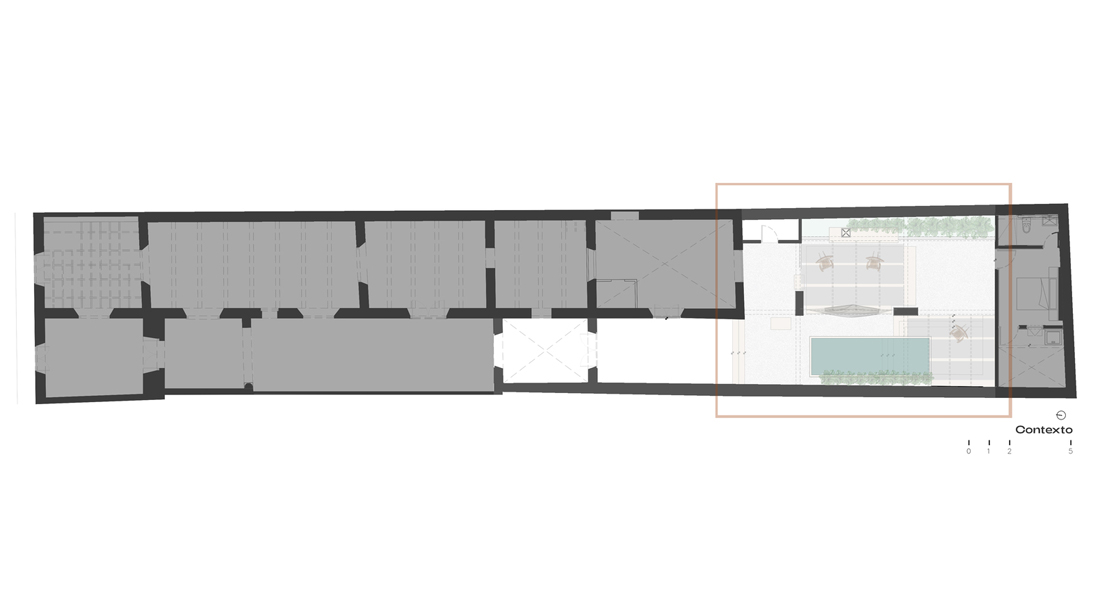
该项目位于梅里达(Mérida)市历史中心的梅约拉达(Mejorada)街区,将未使用的露台改造成休闲凉亭。该提案旨在尊重现有的空间,并仅构建对于在空间中产生更大振幅至关重要的东西。
该提案从地形中心的两堵墙开始,以不同的方式排列以在空间内生成路线。这些墙支撑着一个钢格架,格架在空间上产生不同的环境,并在功能上支撑着带有防水油布的两个象限,从而在内部形成阴影。生成了两个阴影区域:一个带两把椅子,一个凳子和一个吊床的休息室,以及另一个通往游泳池的区域。
项目信息
设计公司:Arista Cero
项目类型:建筑设计、生态设计、景观规划设计
位置:墨西哥
▽ 设计构想
▽ 庭院景观
▽ 细节设计
▽ 平面图
▽ 立面图
编后语:设计师将游泳池的石墙与现有的墙壁融为一体,让露台花园变得更加清凉休闲,给在热带地区的建筑,不仅带来了实际性的降温,也给人视觉上的降温。更多关于生态设计、景观规划设计、建筑设计的案例,请点击下面的拓展阅读进行跳转阅读。
来源网站:www.archdaily.com
翻译整理:WAQI
延伸阅读
三亚洲际度假酒店[酒店设计]
“消失”的接待中心|田园综合体设计的另一种可能性
大凉山沙马普尔彝族人文生态村规划设计
怀来农产品展示中心
汤沟小镇概念性规划
设计终究是一个不断学习的过程,WAQI作为一家学习型设计事务所,通常在设计的过程中,会分析甚至于拆建一些案例,
不定期分享一些心得。请扫描并关注公众号,更多精彩,与您共享。。。
马上分享WAQI:
微信
QQ空间
新浪微博
上一个
下一个