首页
Home
WAQI做些什么
Services
WAQI的作品
Projects
WAQI是谁
About us
WAQI学院
College
联系WAQI
Contact us
logo
开放式的住宅设计|生态建筑
发布于:2020-08-20 09:27 浏览:
建筑漂浮在德班独有的一个屋苑“树屋”上的树木上,是北海岸珍贵的少数剩余的本土沿海森林之一。这座现代住宅旨在无缝融合室内和室外生活,并围绕亚热带德班气候而设计。
这所房子的设计意图是创造一个舒适的开放式居住环境,并与周围环境保持紧密联系。向前移动房屋并使其与场地的自然轮廓保持一致,有助于营造出卧室“漂浮”在森林冠层上方的幻觉,同时还设置了自然的露天剧场,以防风雨。
项目信息
设计公司:Bloc Architects
项目类型:建筑设计、生态建筑、景观规划设计
位置:南非
▽ 建筑外观
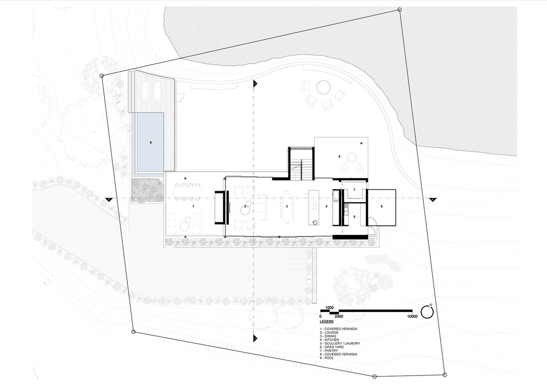
通过使用玻璃幕墙的主要立面,可以使东部树木的海景尽收眼底,而西南部森林绿带的如画美景尽收眼底,从而确保从房屋的每个房间都能欣赏到自然环境的景象。通往一楼的所有玻璃推拉门都无缝地消失在空中,给房屋带来开放和宁静的感觉,并拥有充足的自然采光和通风。一楼的大面积玻璃窗进一步强调了开放式生活。
围绕房屋正立面的花坛使人沉浸在大自然中。西立面的高低层玻璃窗为客户的个人艺术品收藏创造了一个美丽的画廊空间。木材,混凝土和石材的节制原材料调色板已被用来补充场地的自然风光。
▽ 室内设计
▽ 景观设计
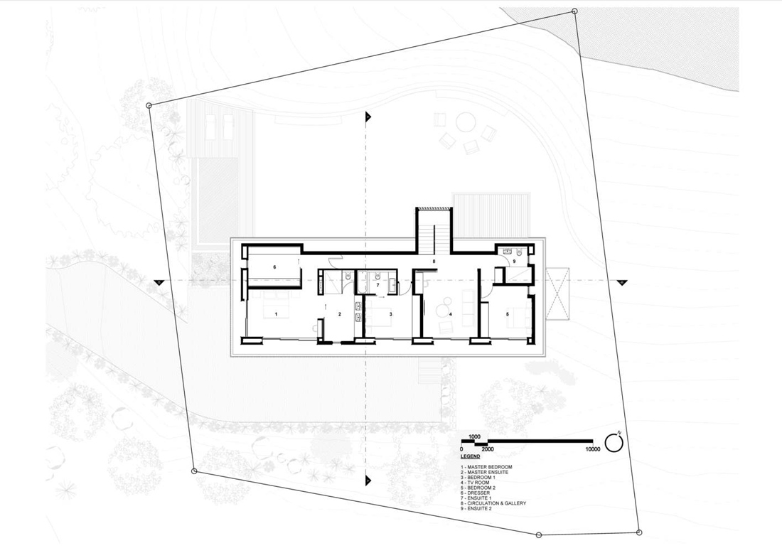
▽ 平面图
▽ 立面图
编后语:设计师将建筑悬空,仿佛整个建筑是一颗大树,在不断地向上生长,屋顶花园以及建筑的景观设计,让建筑不再是闭合的状态,而是对外开放式的,让建筑与自然亲密的结合在一起。更多关于生态建筑、生态设计、建筑设计的案例,请点击下面的拓展阅读进行跳转阅读。
来源网站:www.archdaily.com
翻译整理:WAQI
延伸阅读
三亚洲际度假酒店[酒店设计]
“消失”的接待中心|田园综合体设计的另一种可能性
大凉山沙马普尔彝族人文生态村规划设计
怀来农产品展示中心
汤沟小镇概念性规划
设计终究是一个不断学习的过程,WAQI作为一家学习型设计事务所,通常在设计的过程中,会分析甚至于拆建一些案例,
不定期分享一些心得。请扫描并关注公众号,更多精彩,与您共享。。。
马上分享WAQI:
微信
QQ空间
新浪微博
上一个
下一个