海岸线上的农场|生态农场
发布于:2020-09-07 17:25  浏览:

华盛顿港的盐湖农场坐落在华盛顿圣胡安岛的原始海岸线附近,圣胡安岛是一个只能通过海上或空中进入的小岛,是时尚的精品酒店和占地162英亩的乡村度假胜地,坐落在星期五港口。该项目包括五个小客舱和一个供客户及其两个孩子使用的两层楼房屋。
 
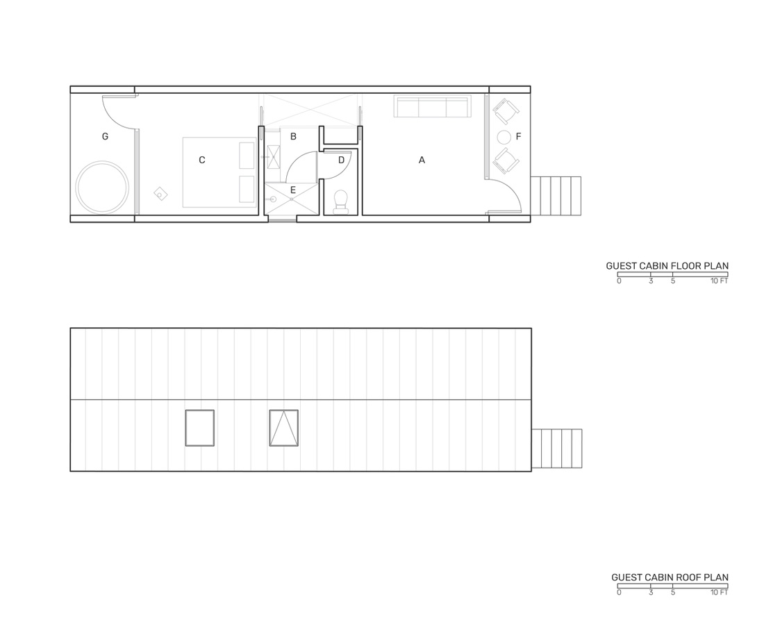
客栈、农场和家庭住宅实现了住户的长期梦想,他们希望离开城市,过上更简单的生活,融入大自然。设计师将五间小木屋放置在高耸的松树之中,以确保客人的独处和私密性。客舱在形式上完全相同,具有精致的斯堪的纳维亚风格的极简主义,但每间客舱均采用定制的内部饰面和周围景观的框架景象,带来截然不同的感觉。
 
 
 
 
 
 
 
项目信息
设计公司:RAD LAB
项目类型:农场设计、生态农场、景观规划设计
位置:美国
 
 
 
 
 
 
 
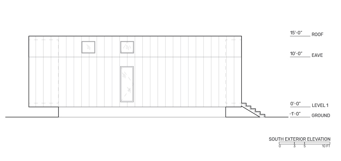
▽ 建筑外观

 
 
 
 
主房屋位于酒店的中央,共享舱室的简约,第二层是业主的住所,第一层是客人的公共聚会场所。主屋拥有高高的天花板,开放式的平面图和可通往宽敞甲板的双开门,是放松休息的理想之地。
 
设计师尽量减少了对蓬勃发展的生态系统的负面影响。有选择地采伐树木,并在现场进行了许多碾磨,以用于取景和整理。
 
▽ 室内设计

 
 
 
 
 
 
 
 
 
 
 
 
▽ 景观设计

 
 
 
 
 
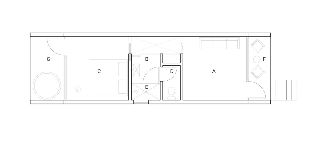
▽ 平面图

 
 
 
 
 
▽ 立面图

 
 
 
 
 
 
 
 
 
 
 
 
编后语:设计师利用可持续性发展理念,将农场、旅馆以及农场主的住所结合在一起,设计成一个充满自然灵感的精品酒店,每一栋小屋旅馆设计师都保护了岛屿的自然美景。更多关于生态农场、生态设计、建筑设计的案例,请点击下面的拓展阅读进行跳转阅读。
 
 
 
来源网站:www.archdaily.com
翻译整理:WAQI






拓展阅读
大凉山沙马普尔彝族人文生态村规划设计
新村湖旅游度假项目景观概念设计
穆家峪桃源度假村概念设计
湄潭大健康旅游小镇
汤沟小镇概念性规划
罗婺文化特色小镇
燕山文化新城概念规划
千灯镇安居小区
设计终究是一个不断学习的过程,WAQI作为一家学习型设计事务所,通常在设计的过程中,会分析甚至于拆建一些案例,
不定期分享一些心得。请扫描并关注公众号,更多精彩,与您共享。。。