首页
Home
WAQI做些什么
Services
WAQI的作品
Projects
WAQI是谁
About us
WAQI学院
College
联系WAQI
Contact us
logo
现代生态棚屋建筑设计|生态设计
发布于:2020-09-11 17:23 浏览:
被动房设计的价格合理,美观,富有弹性和舒适性,设计师试图克服阻碍其主流生存能力的常见挑战。这个占地2755平方英尺的房屋的设计目的是在保持当地历史和文化意义的同时,实现零能耗或维护成本。
自从17世纪荷兰定居者来到纽约哈德逊河谷以来,这种简单,草率的农舍建筑在纽约的哈德逊河谷仍然很常见,并且可以辨认,因此该设计概念取材于此。这种简单性使灵活性,非正式性和与户外的联系成为现代战略表达方式,例如灵活的居住空间和朝南的玻璃的巨大扩展。房屋的设计还旨在延长使用寿命,并包括易于内部扩展和翻新的设计策略。结构跨度,公用事业的限制,宽敞的阁楼空间和模块化地板布局均旨在为未来的住户提供灵活的重新配置和扩展。
项目信息
设计公司:North River Architecture & Planning
项目类型:建筑设计、生态设计、景观规划设计
位置:美国
▽ 建筑外观
在遵守严格的预算约束的同时,设计团队在不牺牲建筑保暖性和表现力的前提下,实现了PHIUS +被动房认证和零净能耗的宏伟能源性能目标。为了降低成本并提高被动房在当地市场的可建造性,对以前没有被动房经验的承包商进行了现场和普通等级的培训,在建造过程中使用了积压的材料,以减少浪费。
▽ 室内设计
▽ 景观设计
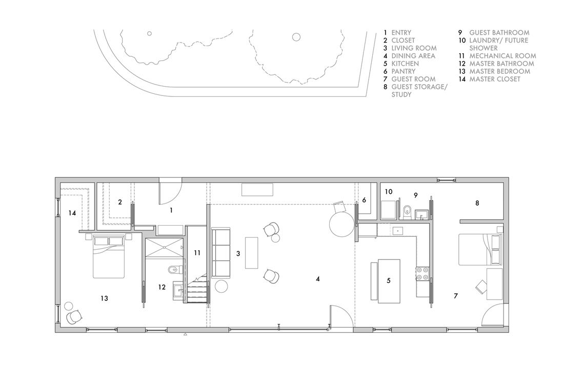
▽ 平面图
编后语:设计师将低能耗棚屋设计置于森林中,让建筑在设计、材料以及未来损耗等方方面面都能够达到环保,降低损耗的要求。这种低廉又环保的建筑将会在未来乡村建筑设计中盛行。更多关于生态建筑、生态设计、建筑设计的案例,请点击下面的拓展阅读进行跳转阅读。
来源网站:www.archdaily.com
翻译整理:WAQI
延伸阅读
三亚洲际度假酒店[酒店设计]
“消失”的接待中心|田园综合体设计的另一种可能性
大凉山沙马普尔彝族人文生态村规划设计
怀来农产品展示中心
汤沟小镇概念性规划
设计终究是一个不断学习的过程,WAQI作为一家学习型设计事务所,通常在设计的过程中,会分析甚至于拆建一些案例,
不定期分享一些心得。请扫描并关注公众号,更多精彩,与您共享。。。
马上分享WAQI:
微信
QQ空间
新浪微博
上一个
下一个