首页
Home
WAQI做些什么
Services
WAQI的作品
Projects
WAQI是谁
About us
WAQI学院
College
联系WAQI
Contact us
logo
山上的三角生态住宅|生态建筑
发布于:2020-09-18 18:25 浏览:
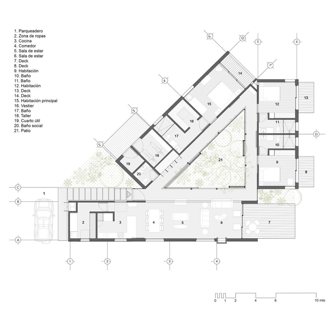
黑色和三角形的房屋,位于山的边缘,有雾和露台;遥远的自然,接近自然。山脉边缘的小地带,有小树林,可以欣赏遥远的山脉,其几何形状暗示了这一占领。
住宅由三个类集装箱建筑组成,它们的位置随地形的不同而定义了三种类型的空间。
项目信息
设计公司:Estudio Transversal
项目类型:建筑设计、生态建筑、景观规划设计
位置:哥伦比亚
▽ 建筑外观
第一栋房屋包含社交区域,并垂直于山脉的远景和到达地垂直放置。第二栋房屋与森林景观垂直,与山峦平行,包含主房间及其服务区域,一间业余爱好工作坊和一间社交浴室。
第三栋房屋体积与其他两个相交,并与山的边缘平行,栖息在非常靠近森林的地方,其中包含儿童房及其服务区域。三栋房屋之间的空隙是内部庭院,通道位于三角形的顶点之一中。
▽ 室内设计
▽ 景观设计
▽ 平面图
▽ 立面图
编后语:设计师利用三栋房屋,围合成一个三角形的房屋建筑群,让住户居住时会看到三面风景,也有一种与山脉交相辉映的感觉,“三面环山”让建筑也变得与周边环境融为一体。更多关于生态建筑、景观规划设计、建筑设计的案例,请点击下面的拓展阅读进行跳转阅读。
来源网站:www.archdaily.com
翻译整理:WAQI
延伸阅读
三亚洲际度假酒店[酒店设计]
“消失”的接待中心|田园综合体设计的另一种可能性
大凉山沙马普尔彝族人文生态村规划设计
怀来农产品展示中心
汤沟小镇概念性规划
设计终究是一个不断学习的过程,WAQI作为一家学习型设计事务所,通常在设计的过程中,会分析甚至于拆建一些案例,
不定期分享一些心得。请扫描并关注公众号,更多精彩,与您共享。。。
马上分享WAQI:
微信
QQ空间
新浪微博
上一个
下一个