首页
Home
WAQI做些什么
Services
WAQI的作品
Projects
WAQI是谁
About us
WAQI学院
College
联系WAQI
Contact us
logo
自动储能度假屋|生态设计
发布于:2020-09-25 18:37 浏览:
位于马萨诸塞州哈佛市的Jenson-DeLeeuw房屋由设计师精心打造,占地2200平方英尺,可产生足够的可再生能源以满足家庭的能源需求。这是通过具有太阳能电池的可再生能源系统和集成无源设计原理来实现的。这座房子坐落在乡村景观中,展示了实现能源独立性的策略,同时提供了宽敞,光线充足的现代生活空间。
项目信息
设计公司:Paul Lukez Architecture
项目类型:建筑设计、旧楼改造、景观规划设计
位置:美国
▽ 设计构想
太阳能电池板和电池有三个微型裂口,可根据需要提供加热或冷却功能。每天进行监控的电池系统可以存储多余的能量,以便在傍晚和阴暗的天气中消耗掉。这所房子的认证HERS等级为(-23),这意味着它产生的能量多于所需量23%。这样就可以保留大量能量,并降低所有者的成本。
朝南的墙的宽敞窗户使自然光线和冬季热量充斥着室内。夏季,深层的屋顶悬挑遮蔽了内部空间,防止其过度暴露和过热。露天平面图和高高的天花板使整个房屋内都能流通,从而提供自然通风。在冬天,三层玻璃窗,隔热墙和低渗透的细节优化了房屋的日光温暖度。在开阔的食堂厨房空间中安装了一个木炉,用于在极冷的日子补充热量。
▽ 建筑外观
这种房屋的设计超出了“零净排放”的目标,其产生的能量超过了其所需的能量,以至于其多余的能量为电动汽车提供动力。汽车和房屋以新的可持续发展方程式结合在一起,在该房子中,将以减少碳足迹的方式重新考虑和重新平衡所产生的能量,存储的能量,房屋所消耗的能量以及移动性所消耗的能量。
▽ 室内设计
▽ 景观设计
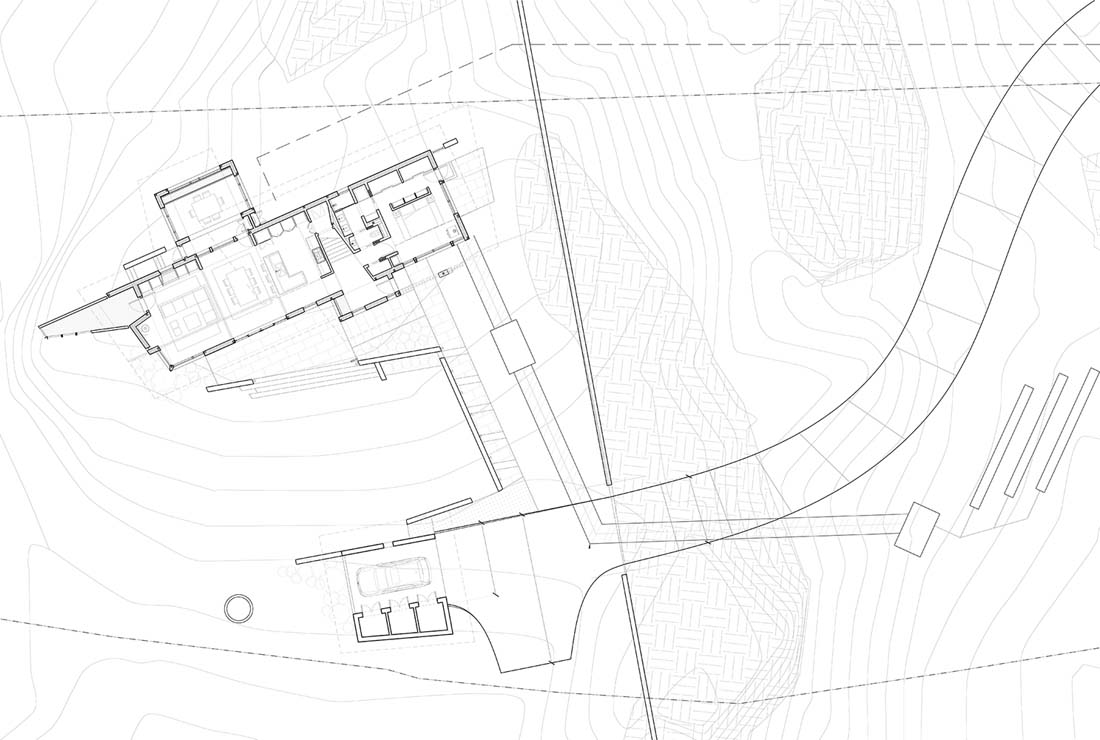
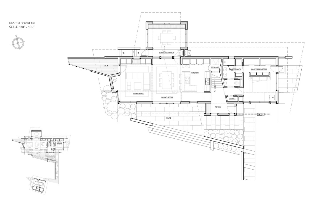
▽ 平面图
▽ 立面图
编后语:设计师将房子变成一个储能的电池,让房子保持基本的日常运营运作同时,还能够让建筑为汽车储能,这不仅仅改变了建筑未来的发展方式,还为未来的交通工具改变了发展方式,让建筑从零耗能转换为储能模式甚至于产能模式。更多关于生态设计、生态建筑、建筑设计的案例,请点击下面的拓展阅读进行跳转阅读。
来源网站:www.archdaily.com
翻译整理:WAQI
延伸阅读
三亚洲际度假酒店[酒店设计]
“消失”的接待中心|田园综合体设计的另一种可能性
大凉山沙马普尔彝族人文生态村规划设计
怀来农产品展示中心
汤沟小镇概念性规划
设计终究是一个不断学习的过程,WAQI作为一家学习型设计事务所,通常在设计的过程中,会分析甚至于拆建一些案例,
不定期分享一些心得。请扫描并关注公众号,更多精彩,与您共享。。。
马上分享WAQI:
微信
QQ空间
新浪微博
上一个
下一个