首页
Home
WAQI做些什么
Services
WAQI的作品
Projects
WAQI是谁
About us
WAQI学院
College
联系WAQI
Contact us
logo
房子的扇形花园空间|生态设计
发布于:2020-09-28 09:53 浏览:
住宅坐落在暹粒镇,世界上最令人难以置信的古迹之一吴哥考古公园就位于隔壁。Breeze House是一个热带现代住宅,完美地将环境与现代感融合在一起。房屋的组织结构与场地的气候和原有树木相呼应,这也是概念设计的基础。
项目信息
设计公司:UAD Architects
项目类型:建筑设计、生态建筑、景观规划设计
位置:柬埔寨
▽ 建筑外观
▽ 室内设计
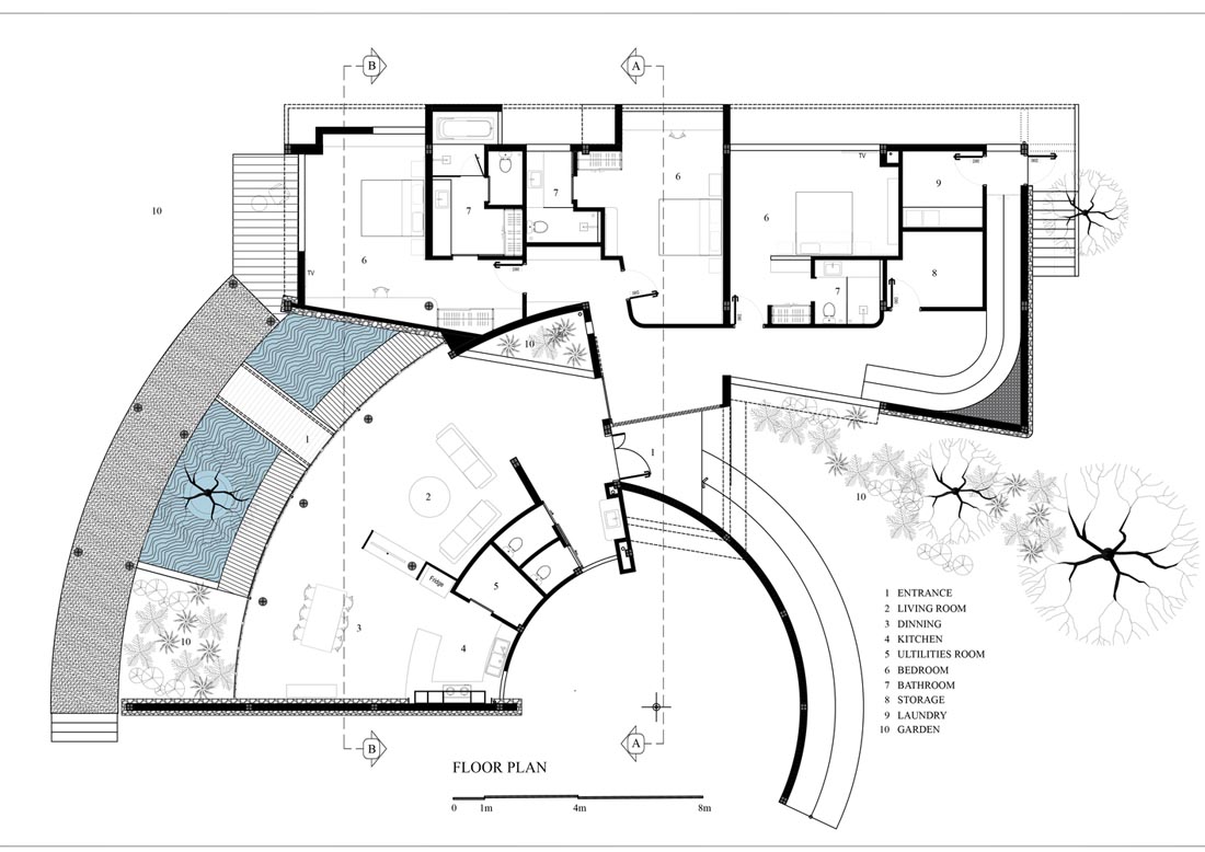
业主要求在靠近水景的地方坐一坐,这必须平衡开放性和私密性的要求。这个空间也是一个动感十足的空间,他可以看到房子的大部分区域,包括厨房,餐厅,入口和走廊。
通过设计一个中央分配空间满足了这些要求,该空间以一个光井空间为固定点,同时围绕着水景。中央开放式采光井将家庭生活区连接起来,捕获充足的自然光,并提供堆叠效果,将气流驱动到内部开口。园林植物和树木是该项目中不可或缺的一部分。
▽ 景观设计
露台,喷泉和人行道的一系列构成了公共室外空间。添加自然植被元素,其形式可以创造出屏风,在建筑物周围提供舒适且美观的空间。这使用户可以在控制所需级别的私密性的同时体验外面的微风以及水声和雨声。
▽ 平面图
▽ 立面图
编后语:设计师将开放式的景观空间与家庭活动联系在一起,模糊景观与建筑的界线,同时也让景观空间变得生动起来,具有生活气息的同时,也将景观带入室内。更多关于生态设计、生态建筑、建筑设计的案例,请点击下面的拓展阅读进行跳转阅读。
来源网站:www.archdaily.com
翻译整理:WAQI
延伸阅读
三亚洲际度假酒店[酒店设计]
“消失”的接待中心|田园综合体设计的另一种可能性
大凉山沙马普尔彝族人文生态村规划设计
怀来农产品展示中心
汤沟小镇概念性规划
设计终究是一个不断学习的过程,WAQI作为一家学习型设计事务所,通常在设计的过程中,会分析甚至于拆建一些案例,
不定期分享一些心得。请扫描并关注公众号,更多精彩,与您共享。。。
马上分享WAQI:
微信
QQ空间
新浪微博
上一个
下一个