首页
Home
WAQI做些什么
Services
WAQI的作品
Projects
WAQI是谁
About us
WAQI学院
College
联系WAQI
Contact us
logo
城市里的周末别墅|生态设计
发布于:2020-09-30 14:45 浏览:
圣保罗是一个拥有2000万人口的大都市。离海岸大约一小时。由于严重的交通拥堵,其居民每天花费数小时上下班。在周末,特别是在夏天,成千上万的人开车到海滩,也造成道路拥堵。为了避免在周末拥堵,业主在圣保罗市中心的建设一家周末房。
在适当倒置的层次结构中,设置一间卧室,以及一个用来做饭和接待朋友的空间。
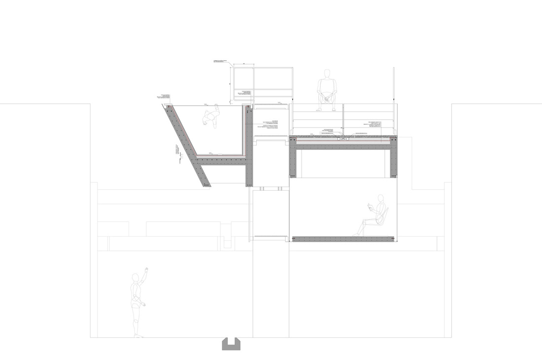
游泳池和日光浴室显示为平行体积。两列位于它们之间1 m宽的间隙中。12 m跨度的一侧朝向支撑游泳池的横梁,另一侧朝向支撑日光浴室的横梁,也将地板悬挂在下方。
为了达到最大的花园面积比,地面没有任何建筑。因此,建筑存在三个不同的层次或三个层次:地面层次[花园–内省或场地限制所涵盖的范围],公寓层次[唯一漂浮在地面上方和泳池下方的室内空间]和屋顶[游泳池和日光浴室,外向或全景空间]。
项目信息
设计公司:SPBR Arquitetos
项目类型:生态建筑、生态设计、景观规划设计
位置:巴西
▽ 建筑外观
▽ 室内设计
▽ 景观设计
▽ 平面图
▽ 立面图
编后语:设计师在市中心建设一间高于地平线的度假屋,将生态与海滩搬进度假屋里,让住户在度假屋的时候能够愉快享受着假期。宽阔的视野与郁郁葱葱的绿植交错着,让人有种迷失在城市的错觉。更多关于生态设计、生态建筑、景观规划设计的案例,请点击下面的拓展阅读进行跳转阅读。
来源网站:www.archdaily.com
翻译整理:WAQI
延伸阅读
三亚洲际度假酒店[酒店设计]
“消失”的接待中心|田园综合体设计的另一种可能性
大凉山沙马普尔彝族人文生态村规划设计
怀来农产品展示中心
汤沟小镇概念性规划
设计终究是一个不断学习的过程,WAQI作为一家学习型设计事务所,通常在设计的过程中,会分析甚至于拆建一些案例,
不定期分享一些心得。请扫描并关注公众号,更多精彩,与您共享。。。
马上分享WAQI:
微信
QQ空间
新浪微博
上一个
下一个