首页
Home
WAQI做些什么
Services
WAQI的作品
Projects
WAQI是谁
About us
WAQI学院
College
联系WAQI
Contact us
logo
混凝土房屋|生态建筑
发布于:2020-10-23 17:30 浏览:
这种多功能的娱乐棚以周围历史悠久的街区的传统形式为特色。指定的后院,缓冲繁忙的小巷和相邻的多户家庭,在后方形成第二个私人院子,而几乎不会遮盖现有房屋。
耐高温的外壳由耐用且基本的材料制成,包围着一个混凝土支架。内部空间覆盖着白橡木,并包含浴室,小厨房,媒体中心等隐私隔断。
项目信息
设计公司:Ravel建筑
项目类型:建筑设计、生态建筑、景观规划设计
位置:美国
▽ 设计构想
建筑物的侧面使用了绝缘的混凝土墙。混凝土墙由两个单独的四英寸混凝土模板组成,中间有两英寸的聚异氰脲酸酯层。效果是十英寸混凝土墙的外观,但具有改善的绝缘性能。
▽ 建筑外观
▽ 室内设计
▽ 景观设计
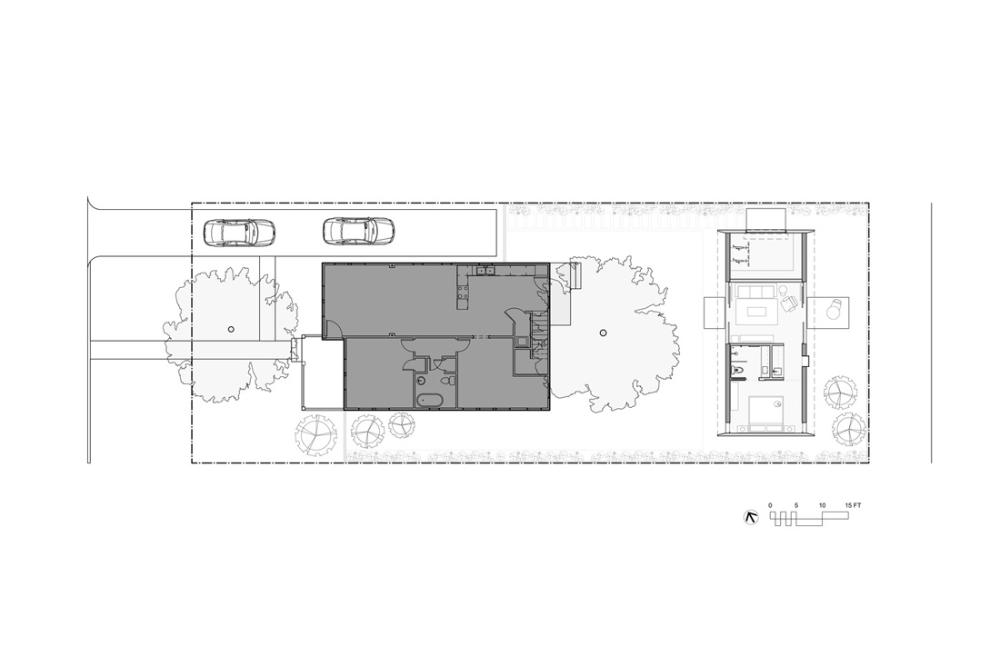
▽ 平面图
▽ 立面图
编后语:设计师让混凝土玩出了新花样,让混凝土建筑也可以变得跟木结构建筑一样环保生态,让住户们在繁忙的生活里都能享受到建筑带来的生态感。更多关于生态设计、生态建筑、建筑设计的案例,请点击下面的拓展阅读进行跳转阅读。
来源网站:www.archdaily.com
翻译整理:WAQI
拓展阅读
大凉山沙马普尔彝族人文生态村规划设计
新村湖旅游度假项目景观概念设计
穆家峪桃源度假村概念设计
湄潭大健康旅游小镇
汤沟小镇概念性规划
罗婺文化特色小镇
燕山文化新城概念规划
千灯镇安居小区
设计终究是一个不断学习的过程,WAQI作为一家学习型设计事务所,通常在设计的过程中,会分析甚至于拆建一些案例,
不定期分享一些心得。请扫描并关注公众号,更多精彩,与您共享。。。
马上分享WAQI:
微信
QQ空间
新浪微博
上一个
下一个