首页
Home
WAQI做些什么
Services
WAQI的作品
Projects
WAQI是谁
About us
WAQI学院
College
联系WAQI
Contact us
logo
寄居在森林|生态设计
发布于:2020-10-27 16:06 浏览:
Binary Wood House是从最初的计划建造私人度假胜地发展而来,最终建成后成为了曼谷五口之家的第二个住所,并有望成为即将退休的父母的最后一个住所。这所房子的存在是为了尊重那些曾经来过的人,无论他们是邻居,当地人,当地动物还是当地树木。
项目信息
设计公司:TA-CHA设计
项目类型:建筑设计、生态设计、景观规划设计
位置:泰国
▽ 设计构想
木板也是该项目的绿色建造之一。树木可以重新长成,并且木材的生产对环境的影响最小。用于建造Binary Wood House的80%的木材包括不同类型的再利用木材,这些木材经过重新抛光,分类和分配,以适应房屋中的不同功能。受到源自Nakorn Ratchasima省的传统和独特的“呵叻之屋”的启发,木制品由当地手工艺人进行,他们的专业知识得到了利用和适应,以满足现代建筑和设计的需求。当地就业也意味着降低了运输成本。
▽ 建筑外观
房屋的位置 与自然融为一体。该物业位于从北向南延伸的山丘上,南部地区是该土地的最高部分,因此可以成为有利的位置,因此也是房屋最合适的位置。但是,随着大量Phayung树(暹罗紫檀)在该地区蓬勃发展,设计师不得不在附近选择另一处土地较少的土地。Binary Wood House终于在Phayung和平存在的旁边建造,其轮廓使房屋免受午后的阳光刺眼。这是互惠互利:人与自然之间的相互依存,房屋与树木之间的对话,就像木笛的声音回到竹子的起源。
▽ 室内设计
▽ 景观设计
高架地板是减少人为干扰自然的一种明智方法。它使当地动物可以在没有人为干扰的情况下以自己的土地为食,并防止与有毒生物相遇。为了最大程度地减少施工对土壤和植物的影响,高架地板还有助于调节土壤中的水分平衡,增加吸水率,并使房屋的轮廓与山坡的地理环境完美融合。
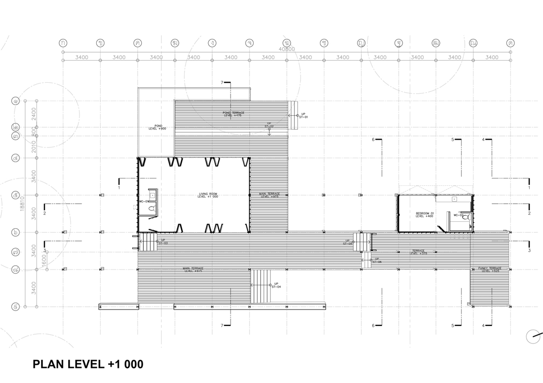
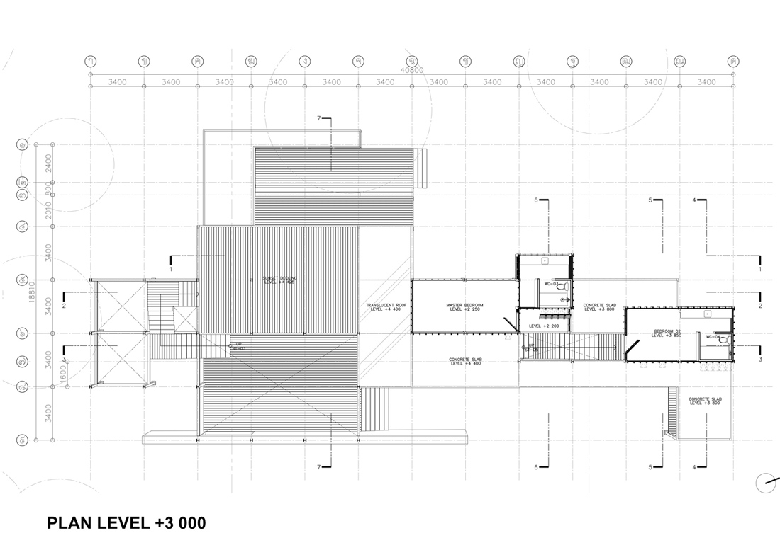
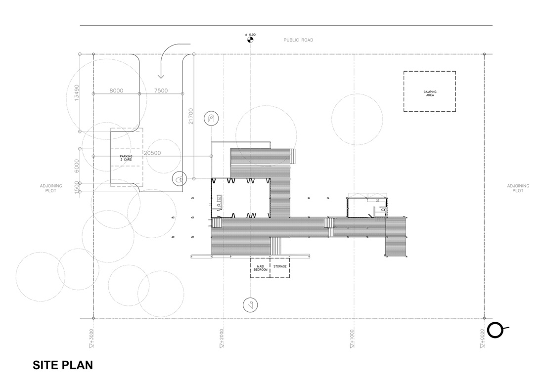
▽ 平面图
▽ 立面图
编后语:设计师通过对房屋的空间布局的规划,使其建筑的存在与周围环境相称。模块化的设计不仅简化施工计划,还可以根据用户偏好可互换房间建筑的功能,让房屋不仅最大程度地减少对自然伤害,还让住户能够自己选择自然的景色。更多关于生态建筑、生态设计、建筑设计的案例,请点击下面的拓展阅读进行跳转阅读。
来源网站:www.archdaily.com
翻译整理:WAQI
延伸阅读
三亚洲际度假酒店[酒店设计]
“消失”的接待中心|田园综合体设计的另一种可能性
大凉山沙马普尔彝族人文生态村规划设计
怀来农产品展示中心
汤沟小镇概念性规划
设计终究是一个不断学习的过程,WAQI作为一家学习型设计事务所,通常在设计的过程中,会分析甚至于拆建一些案例,
不定期分享一些心得。请扫描并关注公众号,更多精彩,与您共享。。。
马上分享WAQI:
微信
QQ空间
新浪微博
上一个
下一个