首页
Home
WAQI做些什么
Services
WAQI的作品
Projects
WAQI是谁
About us
WAQI学院
College
联系WAQI
Contact us
logo
房子的屋顶公园|生态建筑
发布于:2020-10-30 14:37 浏览:
该房屋的设计基于业主的愿望:一个供周末放松的宁静地方,以及充满绿荫,光线和绝对私密性的区域。因此,设计师决定将房屋分为两部分,并进行错层布置,以创造私密性并优化内部正面的空间。
项目信息
设计公司:MDA Architecture
项目类型:建筑设计、生态建筑、景观规划设计
位置:越南
▽ 建筑外观
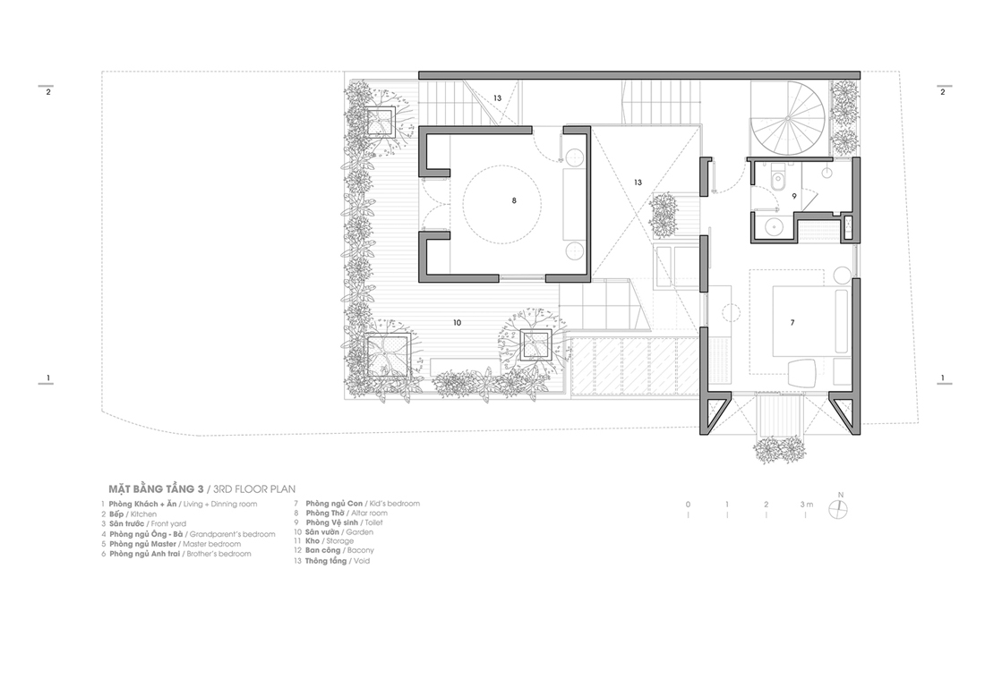
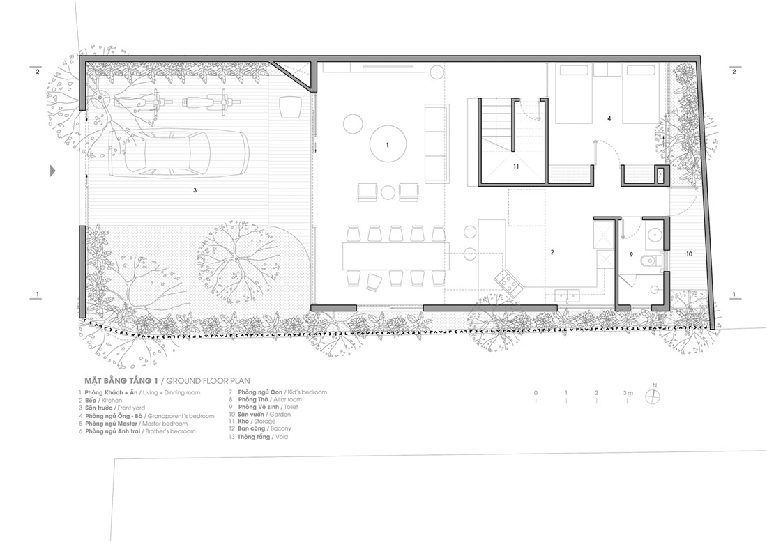
由于该区域用于许多移动性活动,因此每个阳台和每组楼梯都经过特别定制,并且楼层与楼层之间有所不同,避免重复移动并最大程度地提高利用率。
阳台的车厢用类似于大大小小的植物容器的红砖,它们以混乱的顺序排列,并组成在房屋的许多部分,用于实际的种植活动。这样,房屋始终被绿色覆盖,为家庭带来放松和压力。
▽ 室内设计
▽ 景观设计
▽ 平面图
▽ 立面图
编后语:设计师将房屋露台与公园混合在一起的想法,让住户呆在室内并体验清晨的公园活动,此外,露台的公园也可以变成植物园,让住户可以种植蔬菜,让房屋利用率达到最优。更多关于生态建筑、生态设计、建筑设计的案例,请点击下面的拓展阅读进行跳转阅读。
来源网站:www.archdaily.com
翻译整理:WAQI
延伸阅读
三亚洲际度假酒店[酒店设计]
“消失”的接待中心|田园综合体设计的另一种可能性
大凉山沙马普尔彝族人文生态村规划设计
怀来农产品展示中心
汤沟小镇概念性规划
设计终究是一个不断学习的过程,WAQI作为一家学习型设计事务所,通常在设计的过程中,会分析甚至于拆建一些案例,
不定期分享一些心得。请扫描并关注公众号,更多精彩,与您共享。。。
马上分享WAQI:
微信
QQ空间
新浪微博
上一个
下一个