首页
Home
WAQI做些什么
Services
WAQI的作品
Projects
WAQI是谁
About us
WAQI学院
College
联系WAQI
Contact us
logo
极具校园感的棚屋改造|旧房改造
发布于:2020-11-13 17:58 浏览:
新的办公室空间位于一个占地三公顷的场地中,其中有三个废弃的棚屋。设计师主要是通过维护和重新利用已经存在的棚屋,将室外和室内空间的融合创造出一种校园般的感觉。
项目信息
设计公司:Estudio Elia Irastorza +AthiéWohnrath Associados
项目类型:建筑设计、旧楼改造、景观规划设计
位置:巴西
▽ 俯瞰图
▽ 建筑外观
在该区域和中央林荫大道上,都可以找到用于游客的会议室。它们被称为“ Macetas”(花盆),并且由于其圆形形状以及从建筑物的不同层级可以看到的植物的存在而成为建筑物内的标志,从而创建了室内花园。内部和外部植被的融合,以及色彩和艺术的运用,增强了巴西的烙印。除主棚外,还回收了两个古董储藏棚,并改成了餐厅。
▽ 室内设计
此外,设计师还增加了夹层,为工作区域提供了新的空间。空间结构本身与一条非常清晰的轴线分开:中央林荫大道,其作用就像一条主要街道,可容纳各种协作和会议区域。大礼堂放置在轴线的一端,成为建筑物中生动而关键的元素。接收区位于其后部。
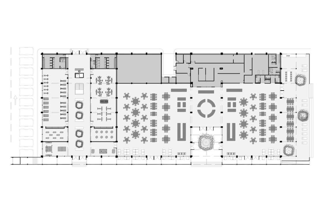
▽ 平面图
▽ 立面图
编后语:艺术是整个办公室改造项目的点睛之笔,可持续性、循环利用是该项目的重要组成部分。设计师通过优化并对自然资源充分利用,如雨水收集系统,减少能源和水的浪费。更多关于旧楼改造、旧房改造、建筑设计的案例,请点击下面的拓展阅读进行跳转阅读。
来源网站:www.archdaily.com
翻译整理:WAQI
延伸阅读
中山产业园改造
景逸庭院式精品酒店改造
昆明教场北路旧房改造项目
WAQI建筑改造案例之蓝豹One·AI智慧谷改造项目
故事未了的江湖客栈|绿境景色花园客栈设计
设计终究是一个不断学习的过程,WAQI作为一家学习型设计事务所,通常在设计的过程中,会分析甚至于拆建一些案例,
不定期分享一些心得。请扫描并关注公众号,更多精彩,与您共享。。。
马上分享WAQI:
微信
QQ空间
新浪微博
上一个
下一个