首页
Home
WAQI做些什么
Services
WAQI的作品
Projects
WAQI是谁
About us
WAQI学院
College
联系WAQI
Contact us
logo
山谷中的乡村度假|乡村旅游设计
发布于:2020-11-13 17:46 浏览:
乡村度假的场地是一个陡峭的山谷,在梯田中种有橙树,还有季节性的供水线,这些都是新建筑进入场地的限制条件。它旨在确保自然生态和生物过程的保护和保存,这是现有生态系统必不可少的。
项目信息
设计公司:MenoséMais Arquitectos
项目类型:建筑设计、乡村规划设计、乡村旅游设计
位置:葡萄牙
▽ 设计构想
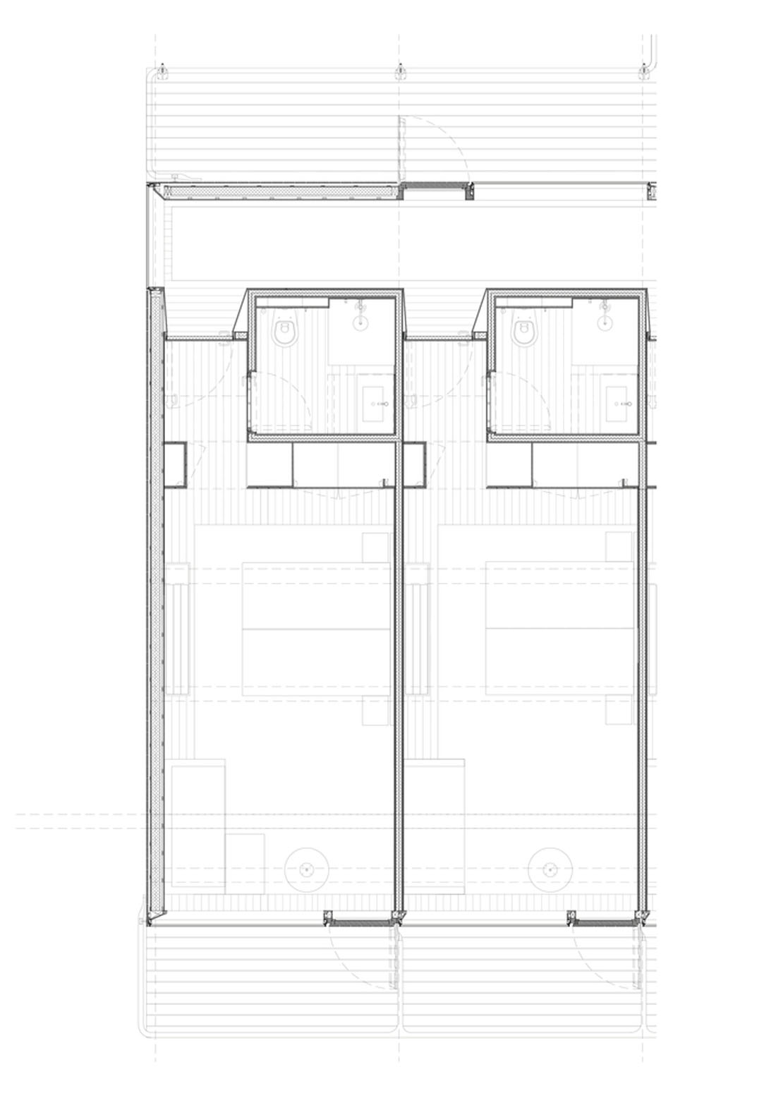
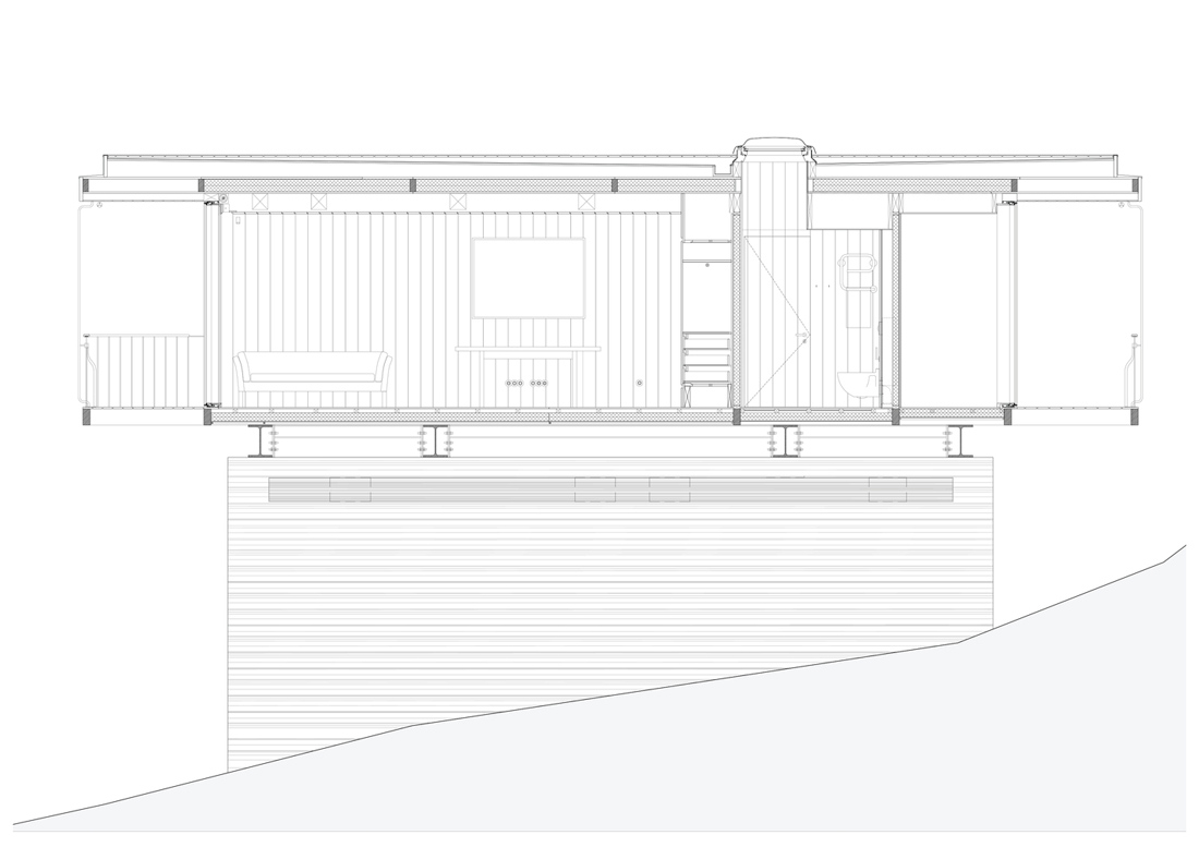
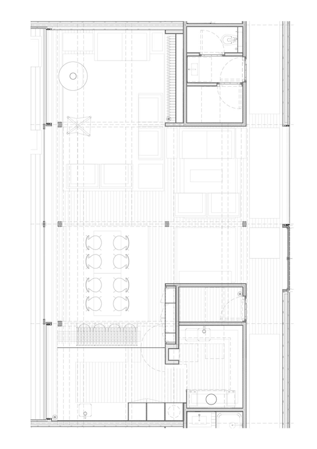
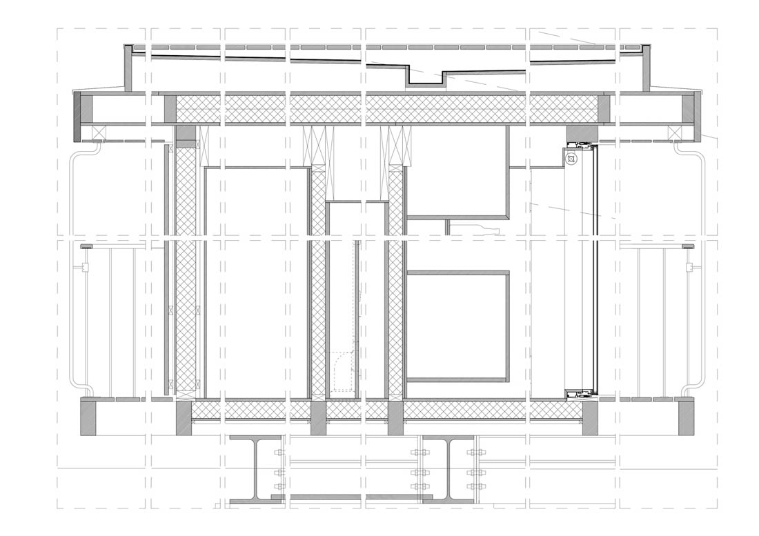
阳台,长露台等形状的外部空间可确保出入和流通,并能防止日光照射和防风雨。在支撑所有木结构的下方,有一个金属框架,该框架搁置在两个支柱中。这些支柱内部有可居住的空间,可容纳所有技术区域和必要的服务。
地点决定了设计的规则。该山谷“几乎”保持原状,度假酒店仅两点站立的悬挂式结构,这可确保对土壤的影响最小。建筑对象力求更接近“桥梁”的概念,更接近基础设施的概念。
▽ 俯瞰图
▽ 建筑外观
▽ 室内设计
▽ 景观设计
▽ 平面图
▽ 立面图
编后语:这个度假酒店就坐落在山谷的山间上,设计师只用了悬挑的技术,将酒店与周边的农业景色融为一体,让建筑丰富的融合在景色,也让每一个到访的顾客,也能融入自然。更多关于乡村规划设计、乡村改造设计、度假酒店设计、建筑设计的案例,请点击下面的拓展阅读进行跳转阅读。
来源网站:www.archdaily.com
翻译整理:WAQI
拓展阅读
大凉山沙马普尔彝族人文生态村规划设计
新村湖旅游度假项目景观概念设计
穆家峪桃源度假村概念设计
湄潭大健康旅游小镇
汤沟小镇概念性规划
罗婺文化特色小镇
燕山文化新城概念规划
千灯镇安居小区
设计终究是一个不断学习的过程,WAQI作为一家学习型设计事务所,通常在设计的过程中,会分析甚至于拆建一些案例,
不定期分享一些心得。请扫描并关注公众号,更多精彩,与您共享。。。
马上分享WAQI:
微信
QQ空间
新浪微博
上一个
下一个