首页
Home
WAQI做些什么
Services
WAQI的作品
Projects
WAQI是谁
About us
WAQI学院
College
联系WAQI
Contact us
logo
在有限的面积里设置庭院|生态建筑
发布于:2020-11-13 18:03 浏览:
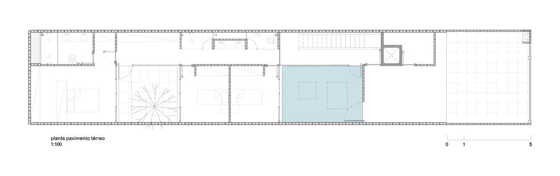
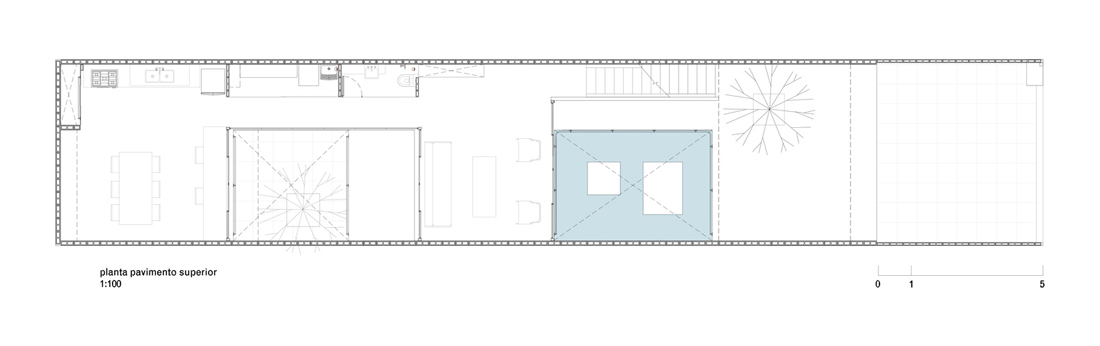
这栋房子代表了圣保罗的一个非常普遍的情况,圣保罗是一个狭长的地面=,只有正面标高不受周围建筑物的干扰。随着土地价值的不断提高,达到像这样的小地块理想面积两倍的解决方案一直是建筑师的工作。
项目信息
设计公司:Terra e Tuma Arquitetos Associados
项目类型:建筑设计、生态设计、景观规划设计
位置:巴西
▽ 建筑外观
考虑到邻居的不可避免的垂直化,所有邻居都粘在边界上,第一步是反转外墙,认为项目“由内而外”。
设计师使其内部极为开放,而不是完全封闭的外围。然后,设计师放置了两个内部庭院,但充当了房屋的外部区域。除了为健康和空间质量提供必要的照明和通风外,还要使房间保持清晰。
▽ 室内设计
▽ 景观设计
▽ 平面图
▽ 立面图
编后语:设计师在这个生态建筑里面,将休闲区与屋顶板集成在一起,成为了这个建筑照明和通风良好的社交场所。室内的院子还变成了水镜,让整个建筑充满一种朦胧美,也并不会因为面积小而缺少庭院。更多关于生态设计、生态建筑、建筑设计的案例,请点击下面的拓展阅读进行跳转阅读。
来源网站:www.archdaily.com
翻译整理:WAQI
延伸阅读
三亚洲际度假酒店[酒店设计]
“消失”的接待中心|田园综合体设计的另一种可能性
大凉山沙马普尔彝族人文生态村规划设计
怀来农产品展示中心
汤沟小镇概念性规划
设计终究是一个不断学习的过程,WAQI作为一家学习型设计事务所,通常在设计的过程中,会分析甚至于拆建一些案例,
不定期分享一些心得。请扫描并关注公众号,更多精彩,与您共享。。。
马上分享WAQI:
微信
QQ空间
新浪微博
上一个
下一个