首页
Home
WAQI做些什么
Services
WAQI的作品
Projects
WAQI是谁
About us
WAQI学院
College
联系WAQI
Contact us
logo
旧村改造为最美民宿村落|乡村改造设计
发布于:2020-11-26 17:17 浏览:
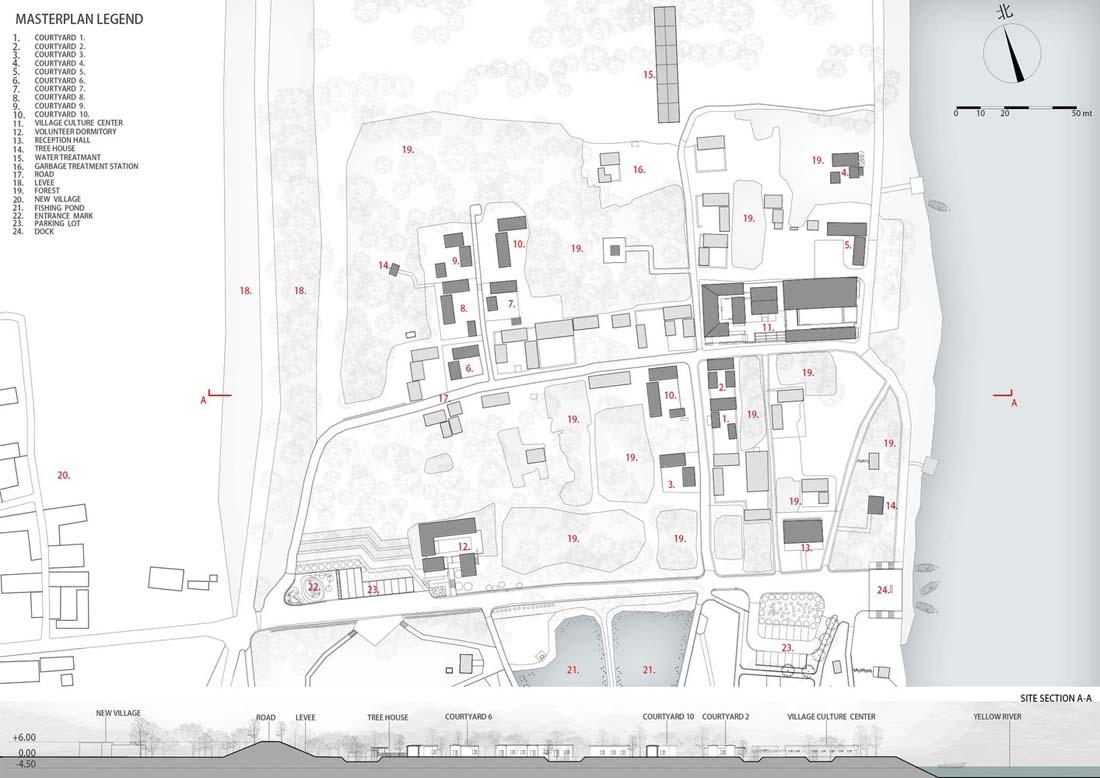
该民宿村落由十余个废弃民居改造的院落酒店、三座公共文化建筑和两个林中树屋组成的小型乡村酒店群落。改造还包括整个村庄的基础设施改造、村落整体风貌保护及有机更新。改造规划强调村落与黄河、大堤、树林和农田的亲密关系,尊重乡村的原始结构、肌理和原风景。
工程施工均由当地村民完成,再现和延续了传统的乡土建造方式和地方文化习俗,强化了乡村社区的认同感和凝聚力。建筑师希望通过对姜庄进行整体改造,建立一种新型的乡村社会生态环境,改善村民的公共生活品质,提升村民的自我价值意识和社会公共意识,从而实现传统乡村向现代乡村的有机转变。
项目信息
设计公司:袁野建筑工作室
项目类型:建筑设计、乡村改造设计、景观规划设计
位置:中国
▽ 设计构想
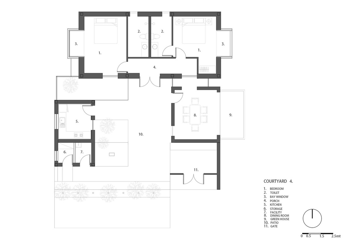
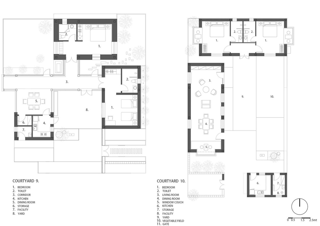
改造建筑延续了当地民居L形和U形的院落格局,保持了生土、砖、青石的外墙材料特色,交错的砖檐口、黄泥屋面以及微微起拱的木屋架形式,并对废弃民居进行结构加固,加做内保温,增加卫生间,提高室内空间高度以利于自然通风和采光,也令室内外环境融为一体。
村民文化中心改造自村中的羊圈和猪圈,功能包括图书室、乡村酒吧、展示馆和餐厅等,形成三个串联在一起的公共院落。林中树屋微拱形的屋顶和民居相统一,是风景的收纳器,同时成为风景的一部分。
▽ 俯瞰图
▽ 建筑外观
▽ 室内设计
▽ 景观设计
▽ 平面图
▽ 立面图
编后语:在乡村改造设计上,唯有回到“原点”,重新建立人与土地的亲密情感和人与自然的共生关系,通过“在地设计”与“在地建造”,让建筑自然地从土地中“生长”出来,方可实现顾客们对“故乡”的心灵回归。更多关于民宿设计、乡村改造设计、建筑设计的案例,请点击下面的拓展阅读进行跳转阅读。
来源网站:www.archdaily.com
翻译整理:WAQI
拓展阅读
大凉山沙马普尔彝族人文生态村规划设计
新村湖旅游度假项目景观概念设计
穆家峪桃源度假村概念设计
湄潭大健康旅游小镇
汤沟小镇概念性规划
罗婺文化特色小镇
燕山文化新城概念规划
千灯镇安居小区
设计终究是一个不断学习的过程,WAQI作为一家学习型设计事务所,通常在设计的过程中,会分析甚至于拆建一些案例,
不定期分享一些心得。请扫描并关注公众号,更多精彩,与您共享。。。
马上分享WAQI:
微信
QQ空间
新浪微博
上一个
下一个