首页
Home
WAQI做些什么
Services
WAQI的作品
Projects
WAQI是谁
About us
WAQI学院
College
联系WAQI
Contact us
logo
浮动的房子|生态建筑
发布于:2020-12-02 17:59 浏览:
在纽约州克洪克森(Kerhonkson),一个浮动房子高耸于天然山脊之上,将精心策划的私人庇护所固定在树林中。在纽约哈德逊河谷的卡茨基尔山脉的山脚下,茂密的林地,海拔高度发生了巨大变化,这是创造独特视角的难得机会。
项目信息
设计公司:Studio MM Architect
项目类型:建筑设计、生态建筑、景观规划设计
位置:美国
▽ 设计构想
从不同的角度以不同的方式与自然相关,建成的环境成为一种互动的容器,可以体验动态的场所感。高高的山脊上有一个凸出的小丘,一直延伸到远处,然后才下车,高处俯瞰卡茨基尔山脉,下面是一条小溪。直接地响应地形,房屋的主要部分与山脊平行,而画廊和工作室则沿着小丘水平延伸。
▽ 建筑外观
▽ 室内设计
通过封闭的画廊,故意将工作室的体积与房屋的其余部分分开。沿着山脊线,画廊强调了到工作室的旅程,同时展示了深刻的个人纪念品和艺术品-视觉提醒人们形成的成就和令人难忘的生活经历。这个工作室被玻璃的三面封闭,是一个追求个人激情的专用空间–该客户正在运行。跑步机和室内自行车可以使您集中精力进行体育锻炼,同时与树木繁茂的景观保持令人振奋的视觉联系。
在家中的其他地方,不断变化的现场视野唤起了不同的感受,并与环境产生了新的体验互动。从房屋的开放式起居室和天井,大面积的玻璃可以将森林的美景尽收眼底。主要居住空间外部缓缓倾斜的地形呈现出与工作室不同的有利位置,让人感到身处树林之中而不是树木上方。主套房设有一个宽敞的独立式浴缸–跑步后既可以放松又可以康复的地方。
浸泡式浴缸显着地位于拐角窗旁,稍稍向南的有利位置可欣赏季节性山景-从俯视山脊可明显看出视角变化。精心设计了房屋的内部装饰,将其与客户和地点紧密联系在一起。
▽ 景观设计
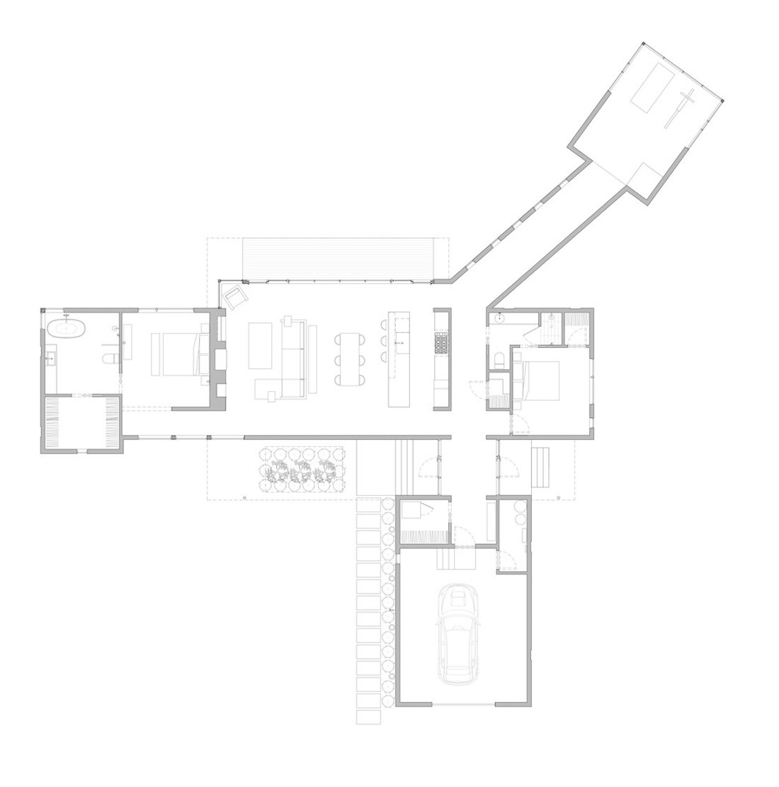
▽ 平面图
▽ 立面图
编后语:这是一个舒适、设计周到的住所,还是一个有激发创造性和运动激情的地方。房子的四周是树木,设计师根据地形变化,让建筑似乎漂浮在景观上方。更多关于生态建筑、生态设计、建筑设计的案例,请点击下面的拓展阅读进行跳转阅读。
来源网站:www.archdaily.com
翻译整理:WAQI
延伸阅读
三亚洲际度假酒店[酒店设计]
“消失”的接待中心|田园综合体设计的另一种可能性
大凉山沙马普尔彝族人文生态村规划设计
怀来农产品展示中心
汤沟小镇概念性规划
设计终究是一个不断学习的过程,WAQI作为一家学习型设计事务所,通常在设计的过程中,会分析甚至于拆建一些案例,
不定期分享一些心得。请扫描并关注公众号,更多精彩,与您共享。。。
马上分享WAQI:
微信
QQ空间
新浪微博
上一个
下一个