首页
Home
WAQI做些什么
Services
WAQI的作品
Projects
WAQI是谁
About us
WAQI学院
College
联系WAQI
Contact us
logo
游乐设施贯穿的农场建筑|生态农庄
发布于:2020-12-04 16:09 浏览:
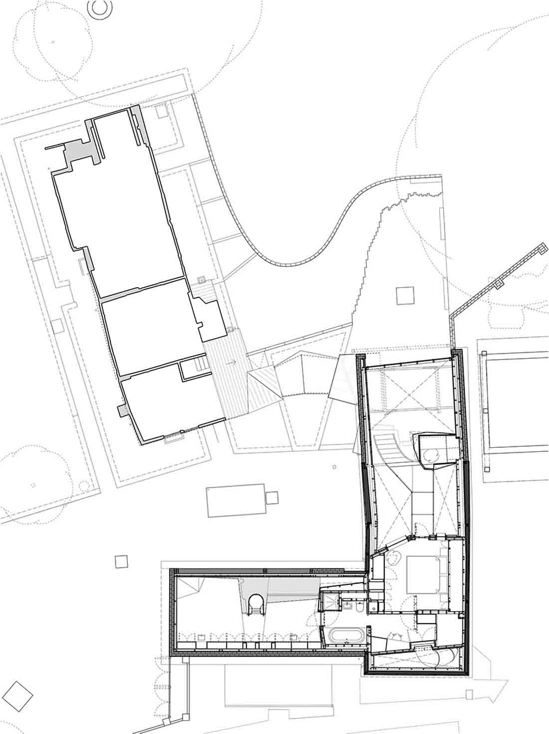
Stanyards农庄的核心部分是一座古朴的“木头与石头”风格的小屋,小屋坐落在二级遗址保护区域内,位置隐蔽私密,被葱郁的灌木丛和林地围绕。设计团队采取了一种灵活的方法重新组织现有的农用建筑,通过连通内部与外部景观的方式解决了原本农用建筑零散、不连贯的问题。
农庄毗邻有着400年历史的二级保护建筑Stanyards Cottage,是该遗址附近的一连串附属小屋,设计方案试图在保留建筑物之间现有位置关系和距离的同时,对其进行更新改造,将零散的建筑群整合成为一座结构统一的独立住宅。
项目信息
设计公司:ALTER & COMPANY
项目类型:建筑设计、生态农场、景观规划设计
位置:英国
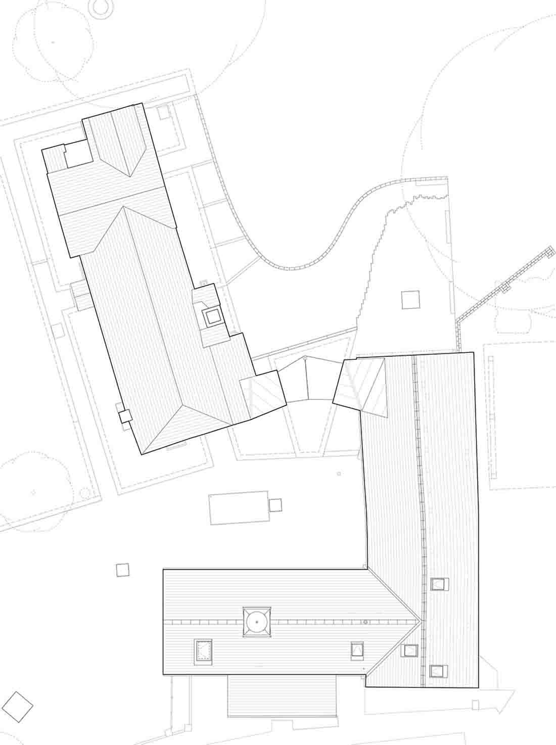
▽ 建筑外观
项目的整合改造需要在连通主屋与附属建筑的同时,保持左右两侧院落之间的视觉联系,为了实现这个设想,设计团队巧妙地创造了一个由不规则多边形玻璃构成的透明空间。“这条创造性的通道兼具反射性与透明性,是项目的点睛之笔。“建筑师补充道。从本质上来说,它隐含了一种对于“时空旅行”的想象,串联了从古老的乡村历史,到充满趣味的当下和未来。
▽ 室内设计
建筑内部景观受到游戏概念的影响,被设计为一种巧妙的环形结构,这种循环结构赋予了建筑无限变化的广阔空间。除此之外,设计师将一些标志性的雕塑穿插在建筑内外,使之成为整体空间流线中的一种接续,或是空间转折的一种指引。这种设计方法将娱乐性引入了住户的日常生活中。贯穿建筑的实验性体验将阳光、物质与历史压缩在了同一个空间之中。
在项目的现代化改造过程中需要保留建筑物的部分原始特征,然而这些特征可能在改造之前已经被拆除或重建了。设计方案试图通过将农用建筑并入房屋,创造一个连贯的建筑空间,在室内和室外之间建立一种动态关系。
▽ 细节设计
▽ 平面图
编后语:设计师为农场建筑的房间配置了不同比例的空间,在新空间与旧空间之间创造了一种连续性,而穿插在建筑动线中的玻璃连廊,则作为一种新的节点,使整体空间更加生动活泼。更多关于生态农场、生态建筑、建筑设计的案例,请点击下面的拓展阅读进行跳转阅读。
来源网站:www.archdaily.com
翻译整理:WAQI
拓展阅读
大凉山沙马普尔彝族人文生态村规划设计
新村湖旅游度假项目景观概念设计
穆家峪桃源度假村概念设计
湄潭大健康旅游小镇
汤沟小镇概念性规划
罗婺文化特色小镇
燕山文化新城概念规划
千灯镇安居小区
设计终究是一个不断学习的过程,WAQI作为一家学习型设计事务所,通常在设计的过程中,会分析甚至于拆建一些案例,
不定期分享一些心得。请扫描并关注公众号,更多精彩,与您共享。。。
马上分享WAQI:
微信
QQ空间
新浪微博
上一个
下一个