首页
Home
WAQI做些什么
Services
WAQI的作品
Projects
WAQI是谁
About us
WAQI学院
College
联系WAQI
Contact us
logo
生活在景观之中|生态建筑
发布于:2020-12-09 13:36 浏览:
Winnwood住宅是一个新的4,600平方英尺的单层住宅,全新的生态设计使业主全年都能在室外景观中生活。房屋的四面都被大面积的景观包围,其中一面是由德州公园和野生动物及美国内政部管理的自然保护公园。
项目信息
设计公司:5G Studio Collaborative
项目类型:建筑设计、生态建筑、景观规划设计
位置:美国
▽ 建筑外观
建筑的外壳是一个坚实的黑色石膏块,坐落在一个封闭的花园中,从中雕刻出外部空隙以在建筑和自然之间形成过渡区域。从房屋内部,到外部的所有视点都在郁郁葱葱的景观中终止。滑动玻璃门将整个宽度完全打开,进入房屋相对两端的墙壁上的集成袋,以使自然通风穿过主要居住区。内部建筑是一个简单,清晰的空间,通过全高的窗户和宽大的天窗,光线充足。
在光滑的反光室内石膏中进行渲染,自然的户外条件使表面具有微妙的色彩。外墙为黑色石膏,预计攀登的波士顿常春藤将超过超时时间;外表面的阴暗黑色使人真正享受到光线,而不是阴影,穿过树木。
▽ 室内设计
▽ 景观设计
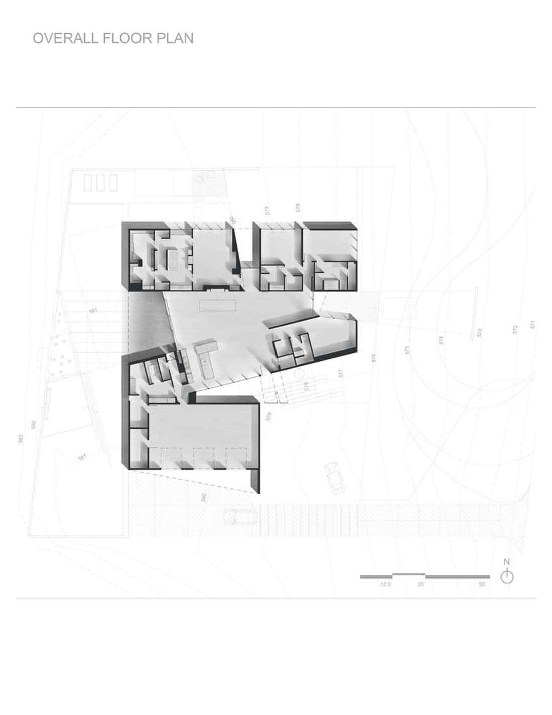
▽ 平面图
▽ 立面图
编后语:设计师为这个生态建筑住宅的架构设计了优雅而安静地外观,实现了其可持续性发展,让景观和室内息息相关。通过出色的建筑风格,让业主能够在最小的社会单位范围内体现对自然的环境管理。更多关于生态建筑、生态设计、建筑设计的案例,请点击下面的拓展阅读进行跳转阅读。
来源网站:www.archdaily.com
翻译整理:WAQI
延伸阅读
三亚洲际度假酒店[酒店设计]
“消失”的接待中心|田园综合体设计的另一种可能性
大凉山沙马普尔彝族人文生态村规划设计
怀来农产品展示中心
汤沟小镇概念性规划
设计终究是一个不断学习的过程,WAQI作为一家学习型设计事务所,通常在设计的过程中,会分析甚至于拆建一些案例,
不定期分享一些心得。请扫描并关注公众号,更多精彩,与您共享。。。
马上分享WAQI:
微信
QQ空间
新浪微博
上一个
下一个