首页
Home
WAQI做些什么
Services
WAQI的作品
Projects
WAQI是谁
About us
WAQI学院
College
联系WAQI
Contact us
logo
营地,也可以是社区公所|营地设计
发布于:2018-11-28 09:06 浏览:
这座新的童子军营及社区公所位于哥本哈根Søndermarken公园的后方,基地沿着道路的走向呈长条形——它最窄处不超过10米,但东西方向的长度为80米,且有近3米的高差。Søndermarken公园中的大树,让这块基地拥有了更多特别之处。
项目信息
设计公司:Sophus Søbye Architects
项目类型:营地设计、营地规划、自然教育
位置:哥本哈根,丹麦
▽ 入口
▽ 院落
位于中央室外空间是营地的前院和活动集中的地点。部分院落被沿着立面悬挑出来的结构所覆盖,形成半室外的空间。
院子里的地面以木板和碎石子铺装。篝火区位于两栋建筑体量和树木围合出的区域的中心。室外空间在东西方向上有半米的高差,建筑师巧妙地利用这一特点设置了坡道和可以坐的台阶。建筑的三面都是公园的树木和灌木,营造出置身林间空地中的感觉。
▽ 东侧的童子军营地
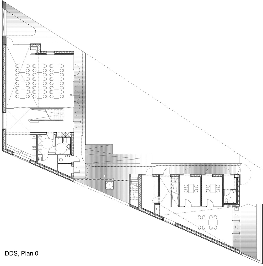
东侧的童子军营地由供童子军们使用的厕所及淋浴设备,还有两个小的巡逻间、一个大的工作坊及一个可以通往屋顶平台的夹层空间构成。每个巡逻间的面积有12㎡,配有桌椅和书柜。
两个房间都有直接通往院子的出入口。工作间的山墙上有直接向下沉庭院开放的门,当打开的时候就成为既是室内又是室外的空间。
▽ 夹层
巡逻室上方的夹层是为从其他地方来这里访问的童子军们准备的,夹层距离地面的高度恰好营造出住在树冠中的感觉。在建筑的尽头是由一间淋浴间和卫生间组成的套房。这个空间是为公园中的跑步的人准备的。
▽ 社区大厅
西侧用于社区居民集会的建筑由一个带壁炉的大型多功能厅、开放式厨房、储物/技术室、入口和咖啡厅区以及起居室上方的夹层楼组成。庭院设有小型仓库和小型卫生间。残疾人卫生间和更衣设施可从前厅进入,也可作为看护人的房间。
▽ 会议室
会议室位于房间的中心,与公园和室外的公共区域相连通,且面向庭院的立面可以大面积开敞,与露台连为一体,形成大面积的半开放空间。咖啡厅和厨房是开放的公共交流区。楼上的夹层同童子军营的夹层有所不同,它的天花板更高,适用于举行更加正式的活动。通过夹层可以直接前往南向的屋顶露台,且站在这里可以俯瞰整个地面层的空间。
▽ 屋顶
屋顶上种植着色彩丰富的草本植物,随着季节的变更,颜色会从浅绿色逐渐过度到红色。屋顶成为建筑的第五立面,同周围的公园融合一体,为周围社区居民提供良好的景观。
▽ 内表面的材料
室内墙面的饰面由现浇混凝土和去皮的松木板构成,地板则是抛光的混凝土。夹层及室内楼梯使用的是竹制板材。厕所、仓库及技术用房的地面由工业涂料粉刷而成。天花板的材料是具有声学效用的LVL板条及松木板。窗框使用的是氧化铝覆面的松木条。
▽ 建筑外部的主要材料
整个建筑外部的主要材料是现浇混凝土和加拿大雪松板。露台和屋顶平台使用的是碳化梣木。镀锌板和不锈钢用作部分构件的防护材料。下水管及水槽等构件使用的是锌材。
除此之外,这还是一座高效节能及满足公共建筑最高使用标准的建筑。
▽ 模型图
▽ 平面图(带环境)
▽ 剖面图
编后语:对于营地,建在社区、公园内能否实现呢?答案当然是可以的,丹麦的这个营地项目就是一个较好的例子。在公园内建造营地,成为营地教育的一部分以外,还让这并不大的营地变成了社区的公所,当然,这只是营地设计的一种形式,但是它的对民众开放的设计态度,值得我们学习。关于营地教育,WAQI有自己的理解,更多关于营地教育、营地规划、营地设计的案例以及想法,可点击下面的拓展阅读。自然、生态和有温度是人性化建筑的三元素,也是WAQI的建筑设计观,为此我们在路上。
来源网站:www.architecturelab.net / www.dezeen.com
翻译整理:WAQI
延伸阅读
营地教育概述
营地教育——父母与孩子共同成长的最好路径之一
营地教育,如何在中国落地开花?
以后要做的事|营地教育落地中国的概述
怀来县桑干农业生态园
星野中国—2030国际生态营地概念规划
新村湖旅游度假项目景观概念设计
设计终究是一个不断学习的过程,WAQI作为一家学习型设计事务所,通常在设计的过程中,会分析甚至于拆建一些案例,
不定期分享一些心得。请扫描并关注公众号,更多精彩,与您共享。。。
马上分享WAQI:
微信
QQ空间
新浪微博
上一个
下一个