首页
Home
WAQI做些什么
Services
WAQI的作品
Projects
WAQI是谁
About us
WAQI学院
College
联系WAQI
Contact us
logo
葡萄园里的幼儿园|营地设计
发布于:2020-08-12 17:35 浏览:
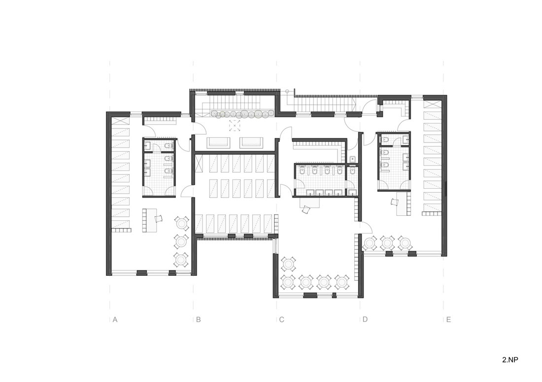
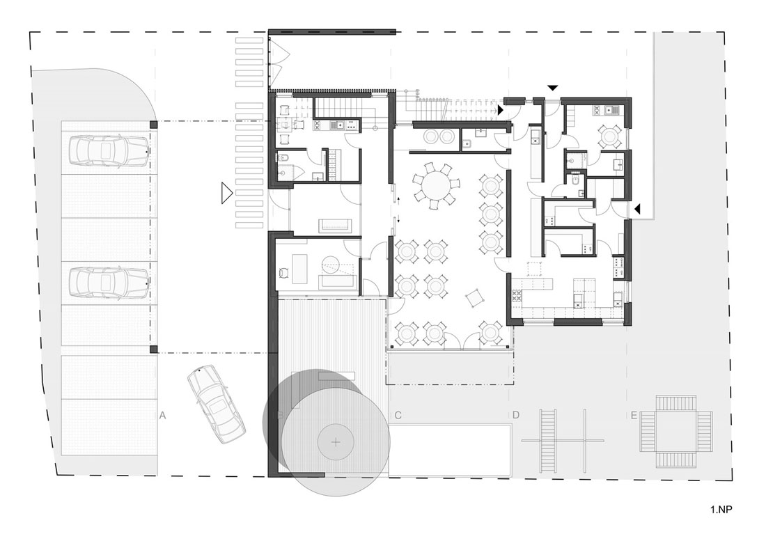
该项目位于斯洛伐克首都伯拉第斯拉瓦附近的一个葡萄庄园内,占地面积很小,这对设计师来说是一个极富挑战性的项目。在总共935㎡的用地范围内,建造满足40个小孩上课的教室、老师们的办公室和休息室、厨房、设备间、操场以及服务家长和员工的停车场。
最终解决方案是把教室布置在二楼的末段。幼儿园分成三个部分,分别容纳10个3岁的小孩,20个4—5岁的孩子以及10个6岁的儿童。因为用地紧张,设计师把设备用房布置在楼梯上方的阁楼部分。
项目信息
设计公司:architekti.sk
项目类型:建筑设计、营地设计、景观规划设计
位置:斯洛伐克
▽ 建筑外观
▽ 室内设计
▽ 景观设计
▽ 平面图
▽ 立面图
编后语:设计师在葡萄园内的小规模地块的情况下,将地块设计为满足所有功能的幼儿园,斜坡屋顶和有趣的窗户以及可以一眼望到葡萄园,让孩子们能在一片充满葡萄园气息中学习。更多关于营地设计、景观规划设计、建筑设计的案例,请点击下面的拓展阅读进行跳转阅读。
来源网站:www.archdaily.com
翻译整理:WAQI
延伸阅读
营地教育概述
营地教育——父母与孩子共同成长的最好路径之一
营地教育,如何在中国落地开花?
以后要做的事|营地教育落地中国的概述
怀来县桑干农业生态园
星野中国—2030国际生态营地概念规划
新村湖旅游度假项目景观概念设计
设计终究是一个不断学习的过程,WAQI作为一家学习型设计事务所,通常在设计的过程中,会分析甚至于拆建一些案例,
不定期分享一些心得。请扫描并关注公众号,更多精彩,与您共享。。。
马上分享WAQI:
微信
QQ空间
新浪微博
上一个
下一个