首页
Home
WAQI做些什么
Services
WAQI的作品
Projects
WAQI是谁
About us
WAQI学院
College
联系WAQI
Contact us
logo
充满森林气味的房子|生态设计
发布于:2020-10-29 17:59 浏览:
Kersko。一个著名的地方,一个“森林小镇”,人口约200,却神秘而又令人惊讶。项目的地块为正方形,边长为100m。原始松树的三分之二仍然屹立不倒,还增加了橡树,桦树和鹅耳。
天然池塘是地区的焦点,这吸引了原始的和新的森林生物。这座房子是芬兰洪卡(Honka)的原木房子,充满自信,但谦卑地站在水面的树林中。从街上几乎看不到它。它的居住者会在松树冠下吸收森林的声音和气味。
项目信息
设计公司:monom
项目类型:建筑设计、生态设计、景观规划设计
位置:捷克
▽ 设计构想
▽ 建筑外观
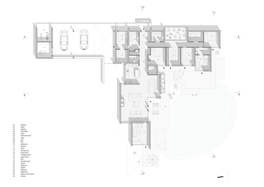
这座房子位于地块的中央,它把水包裹了一半,所以这个天然池塘已经成为房子的一部分。木屋是T形的,带有三个功能和品质各异的翅膀。主入口在三个机翼的交叉点。第一部分由服务空间和房间,车库和储藏室组成;第二部分由卧室,更衣室,浴室和洗衣房组成;第三部分包括厨房,餐厅,客厅和书房。
面对街道的立面长47米,但由于其高度,水平度和颜色较低,因此很好地隐藏在森林中。通过与松树的高度形成对比,它很好地融合到了树林中,并优雅地突出了高大的树木的垂直线。后面的垂直部分在水的作用下延伸到场地的中心深处,并且更具动感。它的屋顶坡度更陡,山脊与墙壁成45度角,这赋予了屋顶独特的形状。房屋的外部是种植园和梯田,大部分位于池塘附近。房子的入口处还有两个大花盆。
▽ 室内设计
内部空间由房屋的体积质量决定。前长机翼基于简单的矩形布局具有平坦的顶棚,因此下方的内部空间适度,合理且人为缩放。相比之下,主要生活区位于更富戏剧性,更倾斜的屋顶下面,从而形成了一个更大的净高,更多的光线和空气的空间。房子的这一部分设有大尺寸的窗户,大部分朝向池塘。墙壁上的开孔的位置使它们能够勾勒出森林最美丽的景色,例如周围的水域,通往凉亭的路径或高大的松树脚下的安静阴影。
▽ 景观设计
▽ 平面图
▽ 立面图
编后语:设计师在森林小镇的中心建造一所房子,不仅如此,还保持了森林的宁静,并为居民提供隐私和安全感,让居民可以在森林里享受到树木带来光和空气。更多关于生态设计、生态建筑、建筑设计的案例,请点击下面的拓展阅读进行跳转阅读。
来源网站:www.archdaily.com
翻译整理:WAQI
延伸阅读
三亚洲际度假酒店[酒店设计]
“消失”的接待中心|田园综合体设计的另一种可能性
大凉山沙马普尔彝族人文生态村规划设计
怀来农产品展示中心
汤沟小镇概念性规划
设计终究是一个不断学习的过程,WAQI作为一家学习型设计事务所,通常在设计的过程中,会分析甚至于拆建一些案例,
不定期分享一些心得。请扫描并关注公众号,更多精彩,与您共享。。。
马上分享WAQI:
微信
QQ空间
新浪微博
上一个
下一个