首页
Home
WAQI做些什么
Services
WAQI的作品
Projects
WAQI是谁
About us
WAQI学院
College
联系WAQI
Contact us
logo
让农场度假屋依山而建|农场设计
发布于:2020-10-29 18:04 浏览:
Cap St-Martin住宅位于波顿镇(Potton)内一条蜿蜒道路的尽端。该住宅坐落在一个高处的平地上,西面是树木茂盛的高地,东面是陡峭的斜坡。此外,住宅的周边还有一系列隐藏在树林中、面向Memphremagog湖(Lake Memphremagog)的度假住宅。通过一个建在陡峭山地上的楼梯,住户可以直接到达湖泊。
受到当地农场建筑的影响,这是一座能够欣赏到自然美景的“农舍”风格的度假住宅。因此最终的体量采用了简单而细长的传统形式,以现代的设计方法和造型重新诠释了谷仓。
项目信息
设计公司:Bourgeois/Lechasseur architects
项目类型:农场设计、生态农场、景观规划设计
位置:英国
▽ 建筑外观
走近住宅,人们便会看到两个具有双坡屋顶的建筑体量。位于前侧位置的较小体量内囊括了一个loft式客房空间、客户的车库和一个艺术家工作室。该体量通过一个可作为过渡空间的明亮的玻璃走廊与住宅主体量联系在了一起。在主体量空间里漫步,之前的空间紧凑感都不复存在,人们会逐渐感受到住宅的悠长和宽敞。
主体量的公共区域作为整个住宅的核心,宽阔且明亮。背靠山林,面朝湖泊,这个公共空间两侧长长的玻璃立面不仅提供了截然相反的绝佳景观:一侧是郁郁葱葱的森林山景,另一侧则是宁静悠远的湖景,还确保了室内空间全天候的自然采光,给人一种置身于室外的错觉。室内的混凝土地板向外延伸,创造出一个室外的露台,突出了空间的通透性和连通性。厨房、次要服务空间和有顶的室外露台依次相连。木饰面的坡屋顶覆盖着整个聚会空间,给人一种大教堂般的柔和感。
▽ 室内设计
▽ 景观设计
底层架空的二层室内走廊位于建筑的西侧,贯穿了整个主要居住空间,连接了两端的卧室。主卧设有自己的露台,住户可以在此欣赏壮丽的景色。
住宅外立面上的深色木制壁板和金属屋顶都让人不仅联想到农舍。两个建筑体量的屋顶向彼此所在的方向延伸,在视觉上变成了一个整体,从而突显了住宅的线性形式。自然景观和建筑在半覆盖的露台空间上相遇,随后在住宅外墙干净利落的线条轮廓和精致的外立面处相融合。
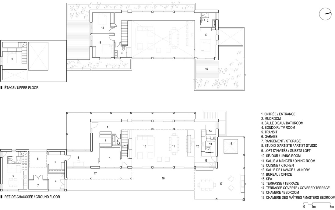
▽ 平面图
▽ 立面图
编后语:设计师利用周边农场建筑的外观,将依山而建的度假屋有着全新的,不一样的农场建筑诠释,虽然外表像谷仓,但是建筑内的设计却十分现代化,亲近自然。更多关于生态设计、农场建筑、建筑设计的案例,请点击下面的拓展阅读进行跳转阅读。
来源网站:www.archdaily.com
翻译整理:WAQI
拓展阅读
大凉山沙马普尔彝族人文生态村规划设计
新村湖旅游度假项目景观概念设计
穆家峪桃源度假村概念设计
湄潭大健康旅游小镇
汤沟小镇概念性规划
罗婺文化特色小镇
燕山文化新城概念规划
千灯镇安居小区
设计终究是一个不断学习的过程,WAQI作为一家学习型设计事务所,通常在设计的过程中,会分析甚至于拆建一些案例,
不定期分享一些心得。请扫描并关注公众号,更多精彩,与您共享。。。
马上分享WAQI:
微信
QQ空间
新浪微博
上一个
下一个