首页
Home
WAQI做些什么
Services
WAQI的作品
Projects
WAQI是谁
About us
WAQI学院
College
联系WAQI
Contact us
logo
在自然环境中学习成长|游戏设计
发布于:2020-11-25 17:15 浏览:
幼儿园内树种的选定根据不同文化、不同地域特征来进行的。栽种了北京已有的树木,有意识的使庭院与周边街道融合。也部分选用了外来的树木,使人能感受到和平时不同的氛围。
因为有花草树木,虫儿们会来,吃虫子的鸟儿也会来。孩子们日常生活中能于此相接触,也有助于学习。处于幼年期的孩子需要体验的身体动作有36个。
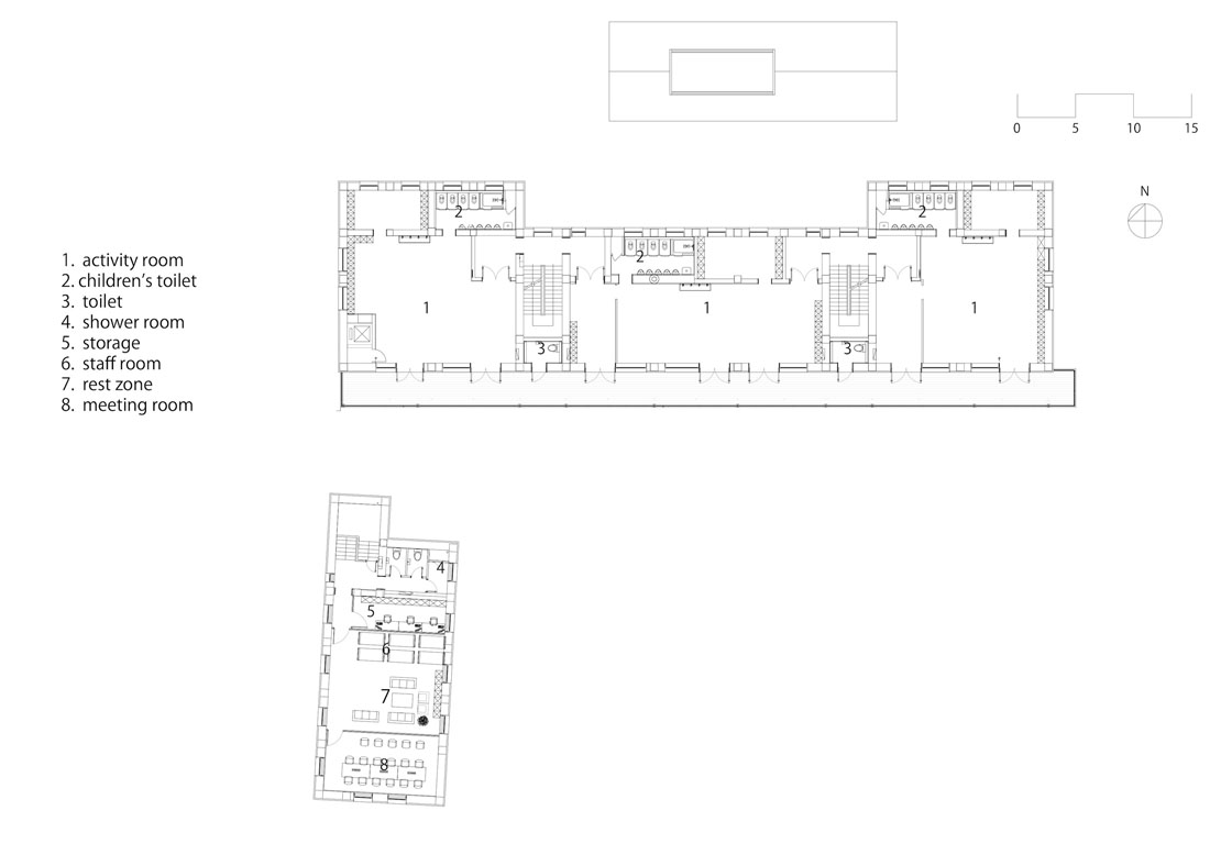
并不是单做某项运动就能习得,而是在活动身体的多种游戏中习得。最好的方法就是在有着丰富大自然的室外玩耍。楼顶是「动之庭」包含运动项目在内用途多样,尽量不放置多余的东西。
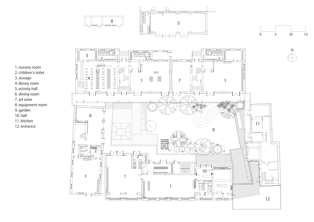
中庭是「学之庭」配置了大量的绿色植物,身处绿意盎然之中,感受花鸟虫鱼。从阳台上能用手够到大树的枝叶,也能向下观望。庭院设置了高低落差,能让身体得到活动学习。对身处大都市中的幼儿园来说,拥有两个如此丰富的庭院是很珍稀的案例。
项目信息
设计公司:HIBINOSEKKEI + Youji no Shiro + KIDS DESIGN LABO
项目类型:游戏设计、营地规划、景观规划设计
位置:中国
▽ 建筑外观
▽ 室内设计
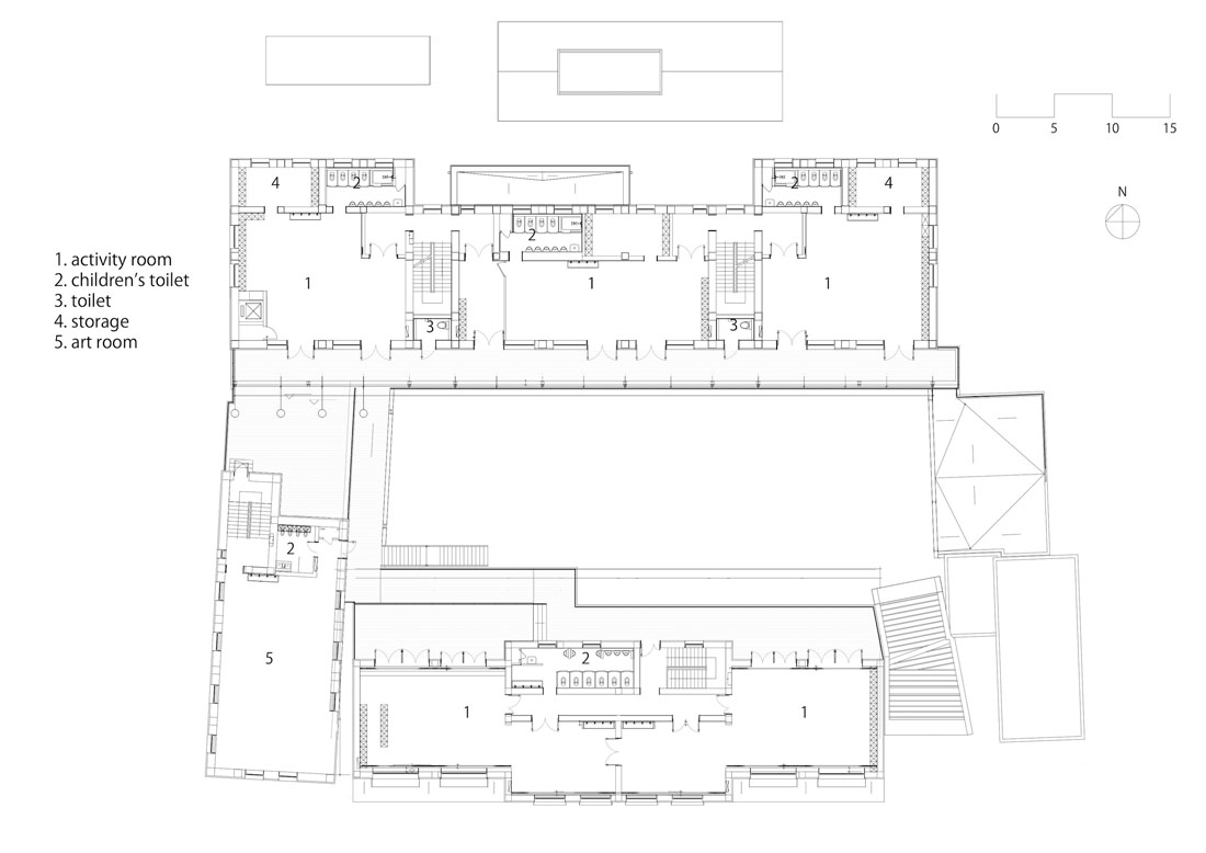
教室是教育的场所,尽可能保持简洁兼具实用。室内简洁,外部结构丰富突出,这样的空间更能感受到植物的气味以及风声水声等自然要素。美术室,图书室,STEM教室作为亮点采取了区别于其他房间的要素作为特别空间而存在。图书室的墙壁,棚架以及天花板均使用木材而制,利用木头的温润感创造出让人安心的空间。
美术室其中一面设置了混凝土质感的架子,赋予了和木材完全不同的印象。随机摆放的架子展示着孩子们各种各样的作品,甚至可以开小型个人展览会。STEM教室用白砖代替天花板,扩大了空间视觉效果,能让孩子们集中于创作活动。
这片身处北京钢筋水泥丛林中的自然环境,旨在帮助孩子们通过玩耍和观察快乐学习成长。
▽ 景观设计
▽ 平面图
编后语:设计师通过规划设计,让孩子们能够从自然环境中培养和感知能力。设计师选用自然的木材,石材,真正的草坪以及种类繁多的树木,让孩子们在日常生活中从自然素材得到学习成长。更多关于营地设计、营地规划、建筑设计的案例,请点击下面的拓展阅读进行跳转阅读。
来源网站:www.archdaily.com
翻译整理:WAQI
延伸阅读
营地教育概述
营地教育——父母与孩子共同成长的最好路径之一
营地教育,如何在中国落地开花?
以后要做的事|营地教育落地中国的概述
怀来县桑干农业生态园
星野中国—2030国际生态营地概念规划
新村湖旅游度假项目景观概念设计
设计终究是一个不断学习的过程,WAQI作为一家学习型设计事务所,通常在设计的过程中,会分析甚至于拆建一些案例,
不定期分享一些心得。请扫描并关注公众号,更多精彩,与您共享。。。
马上分享WAQI:
微信
QQ空间
新浪微博
上一个
下一个