首页
Home
WAQI做些什么
Services
WAQI的作品
Projects
WAQI是谁
About us
WAQI学院
College
联系WAQI
Contact us
logo
在环境中蕴育创造力|自然教育
发布于:2020-06-19 15:44 浏览:
项目基地坐落于日本宫崎市都城市的雾岛山山脚。业主希望将这块乡间的场地开发成一个幼儿保育园,并试图使在内部生活学习过的儿童可以在多年之后,带着彼此的玩伴再次回到这所保育园中。因此,建筑师在设计过程中极力地强调了这所保育园的在地性,并以周边的环境为灵感,提出了“联结互通”的设计概念。
场地上既有的建筑在过去30年间历经了多次的扩建与改造,但幸运的是,这一建筑至今还是一个与周围自然环境融洽相处,并符合当地儿童学习生活所需的空间。因此,在老旧建筑日益衰败之后,建筑师希望所设计的新大楼可以在贴近当地环境的同时,满足幼儿学习、玩耍、用餐和体育锻炼的需求。
项目信息
设计公司:日比野设计, Youji no Shiro
项目类型:营地设计、生态设计、景观规划设计
位置:日本
▽ 建筑外观
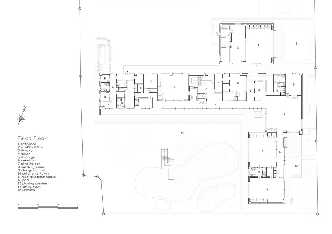
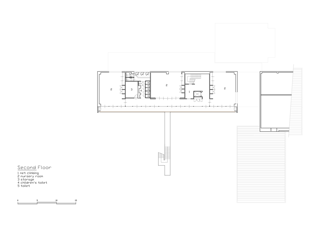
建筑师对场地上既有的四棵古树进行了保留,以留存当地人对其所具有的记忆与陪伴。建筑师以它们为中心,围绕古树设计了这所幼儿保育园,从而使古树可以从内部的各个空间被观察到。建筑师希望借助这样的一种手法,将内外空间联系在一起,并在幼儿和古树之间也搭建一座连接的桥梁。
同时,建筑师还将消防楼梯从二楼一直延展到了古树的树枝底下,使得幼儿们可以更加近距离地感受自然的气息。建筑师在植株的挑选上,对当地常见的雪松和柏树进行了重点地关注,以此来拉近新建保育园与当地社区间的关系。此外,建筑师还将部分的空间进行了适当的分割,使得内部的儿童可以自行地对其进行空间上的功能定义、思考、学习和评估。
▽ 室内游戏设计
▽ 自然教育设计
▽ 景观设计
▽ 平面图
▽ 立面图
编后语:设计师将自然作为核心,让建筑生长在自然环境内,让孩子们能够在场地中获得自然的教育与环境带来的成长与创造力。更多关于营地规划设计、营地教育、建筑设计的案例,请点击下面的拓展阅读进行跳转阅读。
来源网站:www.archdaily.com
翻译整理:WAQI
延伸阅读
营地教育概述
营地教育——父母与孩子共同成长的最好路径之一
营地教育,如何在中国落地开花?
以后要做的事|营地教育落地中国的概述
怀来县桑干农业生态园
星野中国—2030国际生态营地概念规划
新村湖旅游度假项目景观概念设计
设计终究是一个不断学习的过程,WAQI作为一家学习型设计事务所,通常在设计的过程中,会分析甚至于拆建一些案例,
不定期分享一些心得。请扫描并关注公众号,更多精彩,与您共享。。。
马上分享WAQI:
微信
QQ空间
新浪微博
上一个
下一个